결로방지단열재 관련하여 문의드립니다.

하자관련 질문/사례
질문 전에 먼저 검색을 해주세요.


결로방지단열재 관련하여 문의드립니다.

G 민호 7 3,501 2021.02.03 11:54

 

 

안녕하세요 전에 결로방지 단열재 규격이 300mm로 시공되어있어서 문의한적이 있는데요 

도면을 받아봤더니 450mm로 시공되는게 맞더라구요 

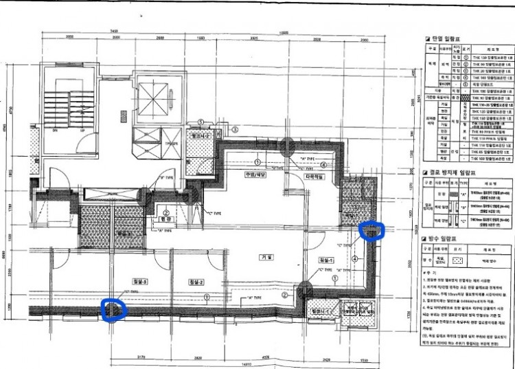
단열상세도.jpg

 

KakaoTalk_20210203_112021884.jpg

 

결로가 발생하지 않은 다른벽체들도 모두 300mm 결로방지 단열재가 시공되어있는 상태입니다. 

 

열화상카메라를 구하여 찍어봤더니 아래 처럼 온도차이가 심합니다. 

 

KakaoTalk_20210203_105341708.png

 

창문은 아래쪽에 바람이 들어와서 온도 차이가 생기는듯하고, 바람이 안들어오게 보수를 하면 될거 같은데 결로방지단열재 보수는 어떻게 해야할지 몰라서 도움 부탁드립니다. 

 

한가지 더 문의사항이 있습니다. 주방식당 왼쪽 발코니가 북쪽이라 햇빛이 전혀 들어오지 않습니다. 창문쪽 벽체에서도 결로가 발생되어 곰팡이가 피고 있습니다. 이쪽은 단열재가 아예 시공이 안되어 있는데 시공을 안해도 문제가 없는건가요?

 

Comments

M 관리자 2021.02.03 11:43
하자보수기간이 지난 아파트인가요?
G 민호 2021.02.03 12:29
이번 8월에 입주한 아파트 입니다.
G 민호 2021.02.03 12:29
20년 8월이네요 작년 8월에 신축으로 입주했습니다.
G 민호 2021.02.03 13:23
결로방지단열재는 450mm으로 시공이 된거 같네요 제가 도면을 잘못 봤어요
내부에 130mm 단열재+석고보드하면 150정도가 빠지겠네요
M 관리자 2021.02.03 14:44
네. 그럼 수치상의 부실은 아니므로, 해당 부위에서 결로나 곰팡이가 있느냐가 중요할 것 같습니다.
온도가 낮은 것 자체로는 판단키 어렵기 때문입니다.
G 민호 2021.02.03 16:19
네 도면상에 파란동그라미 부분에 결로가 발생하여 곰팡이가 피고 있어서 문제가 됩니다. 침실1, 침실3번인데요
보수공사로 130MM 단열재 부분에 구멍을 뚫고 우레탄폼만 쏘고갔는데 결로가 계속되고 있어요 다른 해결책이 있는지가 궁굼합니다.
M 관리자 2021.02.03 17:12
다른 해결책이 있다고 하더라도 공급자가 그것을 수용할 리가 없어서요.
즉 하자에 대한 보수를 해야 한다라고만 되어 있지, 그 방법에 대해서는 규정된 바가 없기 때문입니다.
그러므로 지긋지긋하실 수도 있으시겠으나, 문제가 해결될 때까지 계속 이야기를 하는 수 밖에는 없습니다.
Category