베란다 보일러실 벽 곰팡이

하자관련 질문/사례
질문 전에 먼저 검색을 해주세요.


베란다 보일러실 벽 곰팡이

G 신축하자궁그미 2 1,968 2024.12.23 21:05

보일러실 곰팡이1.jpg

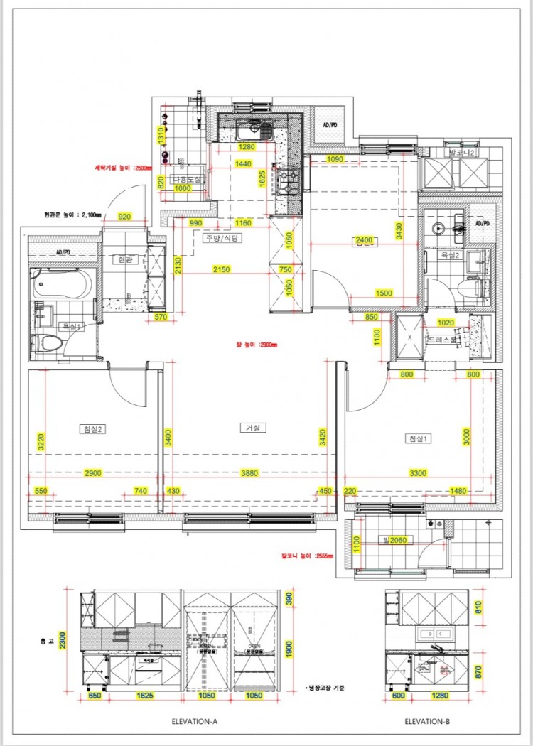
평면도.jpg

 

보일러실 곰팡이2.jpg

 

보일러실 곰팡이3.jpg

안녕하세요? 준공 2년된 아파트에 입주하게 되었는데 시설점검 중에 베란다 보일러실 곰팡이를 발견했어요. 신축 아파트 하자는 3년 이내에 보수가 가능하다고 알고 있는데 이 경우도 해당이 되는지 궁금합니다. 입주청소 시 곰팡이를 추가금 내고 제거할 수 있다고 들었는데 재발 가능성이 보입니다. AS신청해서 탄성코트를 다시 해달라고 해야될까요 (평면도 추가했습니다. 주방쪽 다용도실입니다)

Comments

M 관리자 2024.12.26 16:29
안녕하세요.
이 부분은 탄성코트를 다시 한다고 해서 해결될 수 있는 부분은 아닙니다.
준공 후 2년이 경과한 시점에서는 콘크리트 건조수분도 어느 정도 해소가 된 시점이기에, 그저 환기부족으로 보이기 때문입니다.
G 궁그미 2024.12.27 14:49
답변 감사합니다!
Category