구축아파트 특정시간 퉁 퉁 소음 해결 방법 문의 (신축관 수격현상)

하자관련 질문/사례
질문 전에 먼저 검색을 해주세요.


구축아파트 특정시간 퉁 퉁 소음 해결 방법 문의 (신축관 수격현상)

안녕하세요

 

30년정도 된 지역난방 구축 아파트 입주자입니다.

 

 

작년 10월 말, 기존 세입자가 짐을 빼고 아무것도 없을때부터 알게된 소음인데요, 

그당시 관리실에 문의해보니 신축관 소리이며 모든 세대가 난방을 가동할땐 안날꺼라고 안내 받았었고,

 

해당 소음과 동시에 싱크대 하부 분배기에 부착된 계량기에서도 갤갤거리는? 소음이 나고있는 상황이라 정유량 밸브를 달면 크게 소음이 줄어들것이라고 하셨고, 분배기 전체 교체 및 정유량 밸브를 설치했습니다.

 

이로인해 분배기 계량기 소음은 잡혔지만, 

겨울에는 안들릴꺼라던 벽장 옆 공간에서 퉁 퉁 거리는 수격현상 소리는

겨울 내내 (특정 시간 2시~3시, 4시반~5시, 5시반~6시)에 지속적으로 들렸습니다.

해당 시간에는 저희 집 보일러 가동을 하지 않았습니다.

 

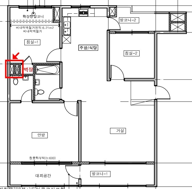
퉁,퉁 소리의 위치는 평면상 표기했습니다. (침실-1의 벽장 옆 구석부분)

 

평면도.jpg

 

 

4월이 된 지금까지도 특정 시간에 지속적으로 소리가 나고있으며, 

(저희집은 보일러를 3월부터는 가동하지 않고있습니다.)

 

몇일 전 갑자기 소리가 평소보다 더 빠르게 들려오길래 다시 관리실에 문의해봤더니, 에어뺴기 등 할수있는 조치를 취해주신다고 하셨고, 업체에도 알아봐주신다고 하셨지만, 노후된 건물이라 더이상 해결할수있는 방법은 없다고 답변 받았습니다.

 

재택근무로 해당 방에 하루종일 있어야하는 상황인데, 

포기하고 살기엔 이 소리때문에 너무 스트레스 받고있습니다..

 

이 소리가 도대체 뭔지, 해결방법이 정말 없는건지 알고싶습니다.

 

혹시라도 저희 집의 문제라면 매수 후 6개월 하자보증 기간이 몇일 남지 않은 상황이라 집주인과 어떻게 협의봐야하는 부분인지도 막막하네요,,

 

전문가분들의 답변 기다리겠습니다.

 

 

 

Comments

M 관리자 2024.04.04 18:15
안녕하세요.
해당 소리는 예측의 범위가 너무 넓어서 제3자가 말씀드릴 수 있는 것은 없고, 관리사무소의 협조를 받아서 원인을 찾으시는 수 밖에는 없습니다.
G 글쓴이 2024.04.04 18:21
안녕하세요! 해당 글이 짤려서 다시 수정해서 올렸습니다. 내용 확인부탁드립니다.
9 trueman 2024.04.05 08:53
아래 글의 내용도 확인해보시면 도움이 될거 같습니다. 소음과 관련된 부분 관리자님께서 정리해 주신 내용입니다.
https://www.phiko.kr/bbs/board.php?bo_table=z4_03&wr_id=14317
M 관리자 2024.04.05 10:27
trueman 님 감사합니다.

----------
표시하신 부분은 공용배관이 지나가는 곳입니다.
원인은 알 수 없으나, 무언가 해결을 하려면 해당 벽을 해체해서 그 속의 배관을 봐야 하는데요.
다만.. 만약 소음과 비와의 연관성이 확인이 된다면, 우수관이므로, 내시경카메라 등을 통해서 간접 확인은 가능하고, 그 것이 아니라면 해결이 쉽지 않습니다.
Category