창문 하부 누수, 바닥과 벽 접합부위, 화장실 내부 타일 코너 부분 누수

하자관련 질문/사례
질문 전에 먼저 검색을 해주세요.


창문 하부 누수, 바닥과 벽 접합부위, 화장실 내부 타일 코너 부분 누수

G 비온뒤 7 2,114 2023.05.19 11:04

 2005년 지어진 벽돌 단층 건물. 2022년 외단열 공사 후 9월 입주 하였습니다. 현관 쪽 용마루에서 몇차례 누수로 실리콘 처리하였습니다. 얼마전 비오는 날 이전에 새지 않던 곳 창문아래로 누수가 발견되어 외벽합성판 떼고 창호마감을 다시 하였습니다. 그리고 하루전 비오는 날 같은 벽쪽 (바닥과 벽이 만나는 부위), 화장실 내부 타일 코너부위에서 물이 베어 나옵니다. 

시공사는 실리콘 처리로 지붕이나 벽체 누수가 아니라는 입장이나 기존 지붕과 벽체에서 누수가 있었던 곳에서 빗물이 나오니 벽돌과 판넬 사이로 유입된 빗물이 벽체로 들어온다는 의심이 듭니다. 

겨울동안 장판아래 물이 고여 바닥 몇 곳을 구멍을 내어 말리는 중인데 비가오니 바닥 콘크리트가 젖는게 보입니다..  원인을 확인하려면 지붕과 벽체를 제거해야 하는데 시공사는 바닥 방수를 얘기합니다. 조언 부탁드립니다.

주방누수부위.jpg

 

기존외벽.jpg

 

외단열 후.jpg

 

판넬 창틀.jpg

 

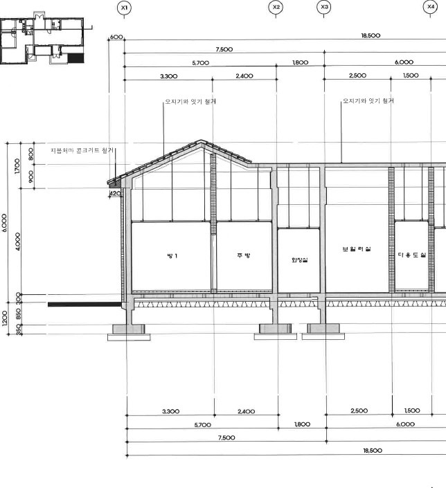
공사전 단면도.jpg

 

단면도 2.jpg

 

단면도 3.jpg

 

변경 1.jpg

 

변경2.jpg

 

변경 3.jpg

 

지붕 평면도.jpg

 

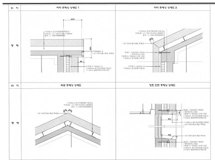
후레싱.jpg

Comments

M 관리자 2023.05.20 00:21
혹시 아래 사진에서, 실내 누수가 되고 있는 지점을 특정해 주실 수 있으실까요?
G 비온뒤 2023.05.21 02:10
누수 지점은 화장실 벽-바닥 코너(보일러실 쪽), 주방 바닥-벽 콘트리트 입니다.
비가오고 물이 베어나오고 콘크리트 바닥으로 흡수 되었습니다.
G 비온뒤 2023.05.21 02:10
지금까지 발생된 문제 시간별 상황입니다..
22년 8월 말 리모델링 준공
처마없음 박스형태, 천장 순환통로 없음 문의 –설계사 문제 없다고 함
22년 9월 1일
화장실 타일 벽 누수 – 수도관 연결부위 확인(시공사)
22년 9월 6일 비옴 내부 누수 – 용마루 실리콘 작업
22년 10월 7일 비옴 내부 누수 – 용마루 실리콘 작업
23년 12월~3월
내부 벽 코너 점형 곰팡이 발생, 창 주위 벽에서 찬바람 들어옴 – 시공사 이상 없다고 함
주방 및 방1 바닥 습기, 벽지, 바닥, 걸레받이 곰팡이 발생
23년 4월 – 분배기 누수, 보일러실 엘보관 누수 확인
(화장실 세탁실 나무틀 제거 시 방수 작업 없이 타일만 덧방했다고 함)
23년 4월 13일 지붕 용마루 높이 조정, 실리콘 작업
23년 4월 25일 설비업체 누수지점 재 점검, 건조 위해 실내 바닥 천공
23년 5월 5일 비옴- 주방 창틀과 바닥 콘크리트에서 누수
23년 5월 9일 지붕 실리콘 작업, 벽체 외부 자제 이음새 실리콘 작업. 처마 ㄷ자 유바 설치.
23년 5월 16일 주방 쪽 합성판 제거 후 창틀 후레싱 우레탄 폼 충전
23년 5월 18일 비, 주방 바닥 콘크리트에서 누수
시공사: 지붕, 벽체 실리콘 작업으로 문제 없다함
설계사: 바닥 방수가 필요하다 함
입주자: 이전에 내부 벽체 결로는 있었으나 바닥 누수는 없었고 지붕과 벽체의 누수가 아님을
확인 한 후 바닥 방수 여부 확인하겠다. 지붕 벽체 재시공 요구.
설계사: 창틀에는 누수가 없었으므로 결로수다. 외부 순환통로 만들겠다.
M 관리자 2023.05.22 21:01
결로수는 아니며 지금 날씨에 그럴 수도 없습니다.
그리고 물은 실내에서 막을 수도 없습니다.

아래 사진의 지붕부터 하부까지 삼각형 부분을 형성하고 있는 판넬을 보면, 접합부가 옆 건물처럼 돌출이음도 아니고 평이음도 아닌, 판넬을 그저 겹쳐 놓은 것 처럼 이어져 있습니다.
이 부분과 옆건물의 지붕이 만나는 부위도 궁금하지만 일단은 이렇게 생긴 이음은 물이 샐 수 있는 이음방식입니다.
문제는 이 것을 겉에서 땜빵하듯이 보완할 방법은 없으며, 뜯어 내고 새로 마감을 해야 한다는 점입니다.  이 것이 근본적인 원인으로 보입니다.
G 비온뒤 2023.05.23 08:30
답변 감사합니다 TT
어제 결로수 확인을 한다고 화장실 주방 외벽을 깼습니다.
5월5일, 18일 내린 빗물이 남아 있을텐테 결로수로 주장하며 설계사는 외벽에 환기 구멍을 내야 한다고 합니다..  감정을 받는 게 맞는 걸까요?
M 관리자 2023.05.23 11:29
그렇게 주장을 한다면, 제3자의 검증을 받는 것이 좋겠습니다.
말씀드린 바와 같이 결로일 수는 없기 때문에....
G 비온뒤 2023.06.29 16:09
시공사에서 지붕과 벽 이음새에 모두 실리콘 작업을 한 상태로 상황을 지켜보자 했습니다. 천장, 창틀로 물이 들어오지는 않으나 방바닥이 더 많은 습기로 바닥과 벽 색이 변합니다.
바닥은 몰탈 모두 제거하고 다시 하더라도 재발되는 습기를 잡을 방법이 없을 거 같아 고민입니다. 건물하자 진단비용도 만만치 않은 상황이라 아직 점검을 하지 못하고 있습니다.
Category