단독주택 2층 화장실 물소리

하자관련 질문/사례
질문 전에 먼저 검색을 해주세요.


단독주택 2층 화장실 물소리

안녕하세요

RC구조 단독주택 신축하여 4개월 넘게 살고있습니다.

 

다름이 아니고 2층 화장실 변기통 물을 내리거나 샤워부스에서 샤워를 하는 경우

1층에서 비오는 소리처럼 물 흐르는 소리가 크게 들립니다.

가족들에게 물어보니 전부터 소리가 들렸다고는 하는데 더 심해진거 같기도 합니다

혹시 배관누수나 그런건지. 아니면 이런 경우가 흔한가요?

누수가 아니라면 하자에 해당되지 않는지,

소리를 잡으려면 공사규모가 어느정도 되는지 궁금합니다 ㅠ

 

 동영상과 음성녹음 파일은 주방에서 찍은겁니다


 


1.png

 

2.png

 

3.png

 




 

Comments

M 관리자 2021.07.15 17:27
안녕하세요..
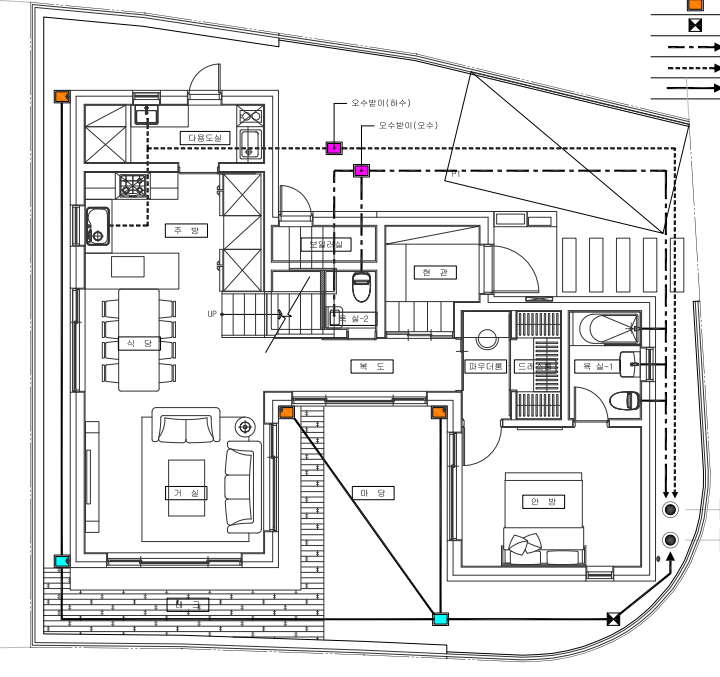
올려 주신 도면은 상수도 배관 도면이라서.. 오하수 도면이어야 하긴 하나...
예측컨데.. 2층의 배관이 1층 천장을 꽤 길게 지나가는데, 수평배관의 종류가 무소음배관이 아닌, 일반배관을 사용한 것 같습니다.
그게 맞다면, (공사중 사진을 확인하거나, 시공사에 문의를 해보아야 합니다.) 원인은 간단하나 그 보수는 천장을 철거하고 배관을 교체하거나 배관을 흡음재로 감싸야 하기에, 꽤 어려운 작업입니다.
Category