외벽과 맞닿는 모서리 곰팡이 문의

하자관련 질문/사례
질문 전에 먼저 검색을 해주세요.


외벽과 맞닿는 모서리 곰팡이 문의

1 곰이22 6 2,747 2024.06.04 00:12

안녕하세요

 

늘 많은 도움을 받고 있습니다. 감사합니다.

 

23년 2월 한달간 인테리어 공사를 하였고, 1년 4개월째 살고 있습니다.

 

최근 외벽과 수직으로 맞닿아있는 화장실 옆 벽쪽에 곰팡이가 생겼습니다. 

IMG_7087.jpg

 

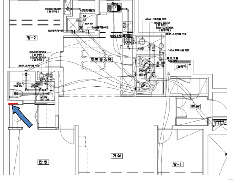
해당 부위의 정확한 위치는 아래 도면과 같습니다.

왼쪽은 외벽이고, 문제 부위는 외벽과 직각으로 맞닿은 벽입니다. (빨간색 표시)

화면 캡처 2024-06-03 235800.png

 

처음에는 저의 관리 소홀로 화장실 습기가 빠져나가지 못해 생긴 문제인가 했는데,

과거 인테리어 철거할 당시의 사진을 찾아보니 해당 부위에 곰팡이 같은 흔적이 아래 사진과 같이 보입니다.


IMG_7183.jpg

 

인테리어 전에는 화장대가 나무로 짜여져있어, 해당 벽이 아예 덮어져 있었고,

벽지가 아니라서 몰랐던 것으로 추정됩니다.

  

해당 벽에서 나오는 콘센트 냄새를 맡아보니 곰팡이에서 나는 냄새와 유사한 냄새가 납니다.

(과거 하수구 냄새가 난다고 문의드렸었는데, 오늘 다시 맡아보니 지하실 냄새같은 퀴퀴한 냄새가 납니다.)

 

드리고 싶은 질문은 아래와 같습니다.

 

1. 해당 부위의 원인이 외벽과 맞닿아있는 면의 모서리에 단열이 되어있지 않아 발생하는 결로 일까요? 아니면 윗집과 관련되어있을까요?

2. 조치를 취해야한다면, 어떻게 해야할까요?

 

답변 부탁드립니다.....

 

감사합니다.

 

[참고용 사진- 인테리어 당시 찍은 사진입니다.]

IMG_3993.JPG

Comments

M 관리자 2024.06.05 11:51
해당 부위는 두가지 조건을 보셔야 합니다.

1. 원래는 외벽쪽으로 (지금 붉은 색으로 선을 그린 부위) 얇은 결로방지단열재가 붙어 있는데요.
인테리어를 하면서 해당 단열재가 제거 된 것은 아닌지 보셔야 합니다.

2. 이를 떠나서 화장실과 맞붙은 드레스룸은 항상 곰팡이의 위험이 높습니다. 그래서 최근 아파트 평면에서는 이러한 평면 구성을 피하게 된 배경이 되었는데요..
화장실 사용 후 한동안 휀을 가동해서 화장실의 습기가 외부로 나오지 않도록 조치를 취해야 하며, 경우에 따라서는 제습기를 놓아야 할 수도 있습니다.
1 곰이22 2024.06.06 22:03
답변 감사합니다.!

아파트 관리사무소에서는 제가 살고있는 집이 해당 부위의 결로가 심해 과거에 건설사에서 틈을 메우는 작업을 진행했었고, 그 때 당시에 단열이 잘 되지 않아서 그런것 같다고 하시네요..
단열을 다시 해야될 것 같다고 해서 근처 인테리어 업체에 방문 요청하였습니다.

그냥 검색으로는 알 수 없는 자세하고 친절한 설명 정말 감사드립니다.
M 관리자 2024.06.07 19:17
감사합니다.
1 곰이22 2024.06.17 18:54
안녕하세요 지난번 답변주신대로 인테리어 업체와 이야기를 하였는데.. 이야기가 다 달라서 의견 여쭙고자 다시 댓글을 남깁니다.

1. 관리사무소 : 결로로 인한 곰팡이 발생 (외부와의 단열 필요)
2. A인테리어 업체 (신규) : 인테리어 시 전열교환기 제거로 환기가 부족한 상태 화장실 습기가 침투하여 곰팡이 발생한걸로 추정됨/ 문제 부위 벽면 철거, 곰팡이 제거, 단열까지 필요함 (단열은 어떤 문제인지 정확한 원인을 모르니..)
3. B인테리어 업체 (기존 리모델링 진행 업체) : 가구로 막혀있던 부위이니 곰팡이는 존재할 수 있음/ 윗집의 미세한 누수 혹은 외부 크랙으로 인한 수분 유입으로 추정되나, 정확한 원인 파악을 위하여 안방 화장실을 1개월 간 사용하지말고 곰팡이가 퍼지는지 지켜볼 것 (더이상 퍼지지 않으면 화장실의 습기 침투로 예상됨)

제가 궁금한 점은 벽면이 젖어있거나 한적은 없습니다. 누수 흔적도 보이지 않고요.. 그런데도 윗집의 누수일 가능성이 있을까요?

우선 기존 리모델링 업체의 말대로 1개월간 화장실 사용을 안하고 지켜보려고 하는데.. 곰팡이가 퍼지지 않는 것 만으로 화장실의 습기 침투가 원인이라고 볼 수 있을까요?

본 사람들마다 원인이 달라서 어떻게 하는게 좋을지.. 의견 부탁드립니다.

문제 부위와 맞닿는 면의 화장실 천정쪽 사진은 아래에 첨부하겠습니다.
1 곰이22 2024.06.17 18:57
문제 부위의 벽과 맞닿은면이 왼쪽입니다.
M 관리자 2024.06.17 21:26
우선은 누수로 보이지 않는다는 점입니다.
이 것을 전제로 조금 지켜 보시는 것이 좋겠습니다.
Category