하자/불편 관련 질문 315 페이지 > (사)한국패시브건축협회 (Passive House Institute Korea)
한국패시브건축협회
협회안내
임직원 및 회원사현황
조직도
인사말
주요 사업
목적 및 연혁
가입안내
협회 정관
공평성 선언문
오시는 길
공지
공지사항
협회 동정
회원사 동정
협력사 동정
보도자료 /소식
오픈하우스 소식
신청
패시브건축 인증 신청
신축
리모델링
기밀성능테스트 신청
에너지성능 현황분석 신청
건축부재 시뮬레이션 신청
실무자 교육 신청
세미나 신청
표준주택 견학 신청
장비대여신청
표준주택
표준주택
표준주택 문의
표준주택 사례
시즌1
시즌2
시즌3
시즌4
표준주택 시공과정
경량목구조
스틸하우스
RC+평지붕
자료실
기술자료
자료 내려받기
전문가 칼럼
책 소개
Passipedia 번역
질문/하자사례
자주 묻는 질문
설계/시공관련 질문
하자/불편 관련 질문
열해석관련 질문
Energy# 관련 질문
WUFI 관련 질문
이런 저런 이야기...
사례집
사례집(저에너지/패시브)
사례집(회원일반건축물)
좌충우돌 제로에너지 아파트 리모델링
인증건물 매매/임대
자재정보
단열
회원사_하이셀 : 엘에스기연
회원사_EZ Block : 이지블록
회원사_동건
회원사_정양SG
회원사_디케이보드
외단열미장마감
방수상부외단열공법(역전지붕)
회원사_주잡자재
회원사_주티푸스코리아
열교
회원사_티푸스코리아
회원사_TB Block
회원사_이비엠리더
회원사_스타빌엔지니어링
회원사_정양SG
기밀
회원사_프로클리마 : 프로클리마코리아
회원사_유로벤트 : 이루카씨앤티
회원사_SIGA : 잡자재
창호
회원사_케멀링 : 엔썸
회원사_레하우 : 유로레하우
회원사_KBE : 우신윈시스템
회원사_살라만더 : 에스알펜스터
회원사_바우엔 : 승효
회원사_디크닉 :삼익산업
회원사_트로칼 :윈체
차양
환기
회원사_SSK : 스타즈스터링코리아
회원사_은성화학
회원사_옥토아이앤씨
회원사_휴마스터
회원사_komfovent : 잡자재
협력사_대호에이엘
설비
회원사_복사냉방 : 잡자재
회원사_ 건식난방패널 : 에코-에너다임
친환경
회원사_ESB : 프로클리마코리아
협력사_코닝정밀소재
협회안내
임직원 및 회원사현황
조직도
인사말
주요 사업
목적 및 연혁
가입안내
협회 정관
공평성 선언문
오시는 길
공지
공지사항
협회 동정
회원사 동정
협력사 동정
보도자료 /소식
오픈하우스 소식
신청
패시브건축 인증 신청
기밀성능테스트 신청
에너지성능 현황분석 신청
건축부재 시뮬레이션 신청
실무자 교육 신청
세미나 신청
표준주택 견학 신청
장비대여신청
표준주택
표준주택
표준주택 문의
표준주택 사례
표준주택 시공과정
자료실
기술자료
자료 내려받기
전문가 칼럼
책 소개
Passipedia 번역
질문/하자사례
자주 묻는 질문
설계/시공관련 질문
하자/불편 관련 질문
열해석관련 질문
Energy# 관련 질문
WUFI 관련 질문
이런 저런 이야기...
사례집
사례집(저에너지/패시브)
사례집(회원일반건축물)
좌충우돌 제로에너지 아파트 리모델링
인증건물 매매/임대
자재정보
단열
외단열미장마감
방수상부외단열공법(역전지붕)
열교
기밀
창호
차양
환기
설비
친환경
메인
협회안내
공지
신청
표준주택
자료실
질문/하자사례
사례집
자재정보
0
자주 묻는 질문
설계/시공관련 질문
하자/불편 관련 질문
열해석관련 질문
Energy# 관련 질문
WUFI 관련 질문
이런 저런 이야기...
하자관련 질문/사례
질문 전에 먼저 검색을 해주세요.
베란다 골칫거리
940
|
G
바구니
|
댓글
5
|
2021.02.13
안녕하세요, 상담글과 유튜브 채널 재미있게 보고 있습니다. 다름 아니라 2층 ㅂㅔ란다에 사진과 같은 구조물이 벽면에 있어서 예전 변기의 물통처럼 밸브를 돌려 수위를 낮게 조정해놨음…
더보기
[사진추가] 신축아파트 입주예정입니다.
939
|
G
김인숙
|
댓글
3
|
2021.02.12
위와 같이 현관 오른쪽 펜트리공간 벽마감 불량입니다. 현관에서 펜트리로 들어오는 검정대리석과 펜트리 타일사이 메시작업없는 0.8cm정도의 틈이 있습니다. 뭐 균형이 안 맞았었나 봅…
더보기
원룸 화장실 소음때문에 여쭙습니다
938
|
G
주르륵
|
댓글
5
|
2021.02.12
안녕하세요. 한 달동안 물소리 때문에 새벽에도 자주 깨고 생활이 어려워진 자취생입니다ㅠㅠ 우연히 이런 사이트가 있다는 걸 알게되어 선생님들께 여쭙습니다. 기본적으로 이 건물 수압이…
더보기
노이로제걸릴듯해요도와주세요
937
|
G
구효진
|
댓글
5
|
2021.02.11
인테리어후들어왔는데 거실확장하구요 날개벽이라는 곳중 왼쪽에서 소리가나요.첨엔 지지직 전기소리인줄알았는데 귀를벽에대보니 물이 꾸르륵 흐르는소리더리구요 8층중7층이고 옥상에 물탱크가있…
더보기
보일러 구동기 소리
936
|
G
윤보한
|
댓글
7
|
2021.02.11
보일러 구동기 소음이 딱딱딱 납니다.. 이미 4번정도 교체했고 그 아래 밸브까지 교체했는데도 소리가 나네요 다른 분배기 부품에서 소리가 나는건지... 어찌 소음 잡아야할까요 ㅠㅠ
원룸 배수 소음, 원룸 물 내려가는 소리
935
|
G
이희경
|
댓글
4
|
2021.02.10
안녕하세요 며칠동안 잠을 제대로 못 자 지푸라기라도 잡는 심정으로 글 올립니다 ㅜㅜ 제발 도와주세요 ㅠㅠ 원래는 주변 방에서 물을 써도 아무 소리도 나지 않았습니다. 그런데 일주일…
더보기
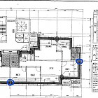
안녕하세요 제 방에 생긴 결로 관련,, 샤시 관련으로 글 살며시 남겨봅니다,,
934
|
1
모지
|
댓글
22
|
2021.02.10
안녕하신가요 요즘들어 협회 글을 많이 읽어보네요 다름이 아니라 궁금한게 있어 글을 써봅니다.. 저희 집 도면 입니다^^,,, 다름이 아니라 문제 되는 부분은 이 부분인데요 저 빨간…
더보기
드레스룸 결로
933
|
G
정영은
|
댓글
2
|
2021.02.09
안녕하세요 신축 입주한지 한달만에 드레스룸 결로로 맘고생중입니다 코너 모서리가 젖어 곰팡이가 올라와 이번에 외부와 맞닿은쪽 석고보드를 떼고 이보드를 붙였는데요 담날보니 옆라인과 붙…
더보기
누수 후 건조까지 걸리는 시간
932
|
G
누수
|
댓글
11
|
2021.02.08
인녕하세요. 집에 온수관이 터져 방바닥이 침수됐었습니다. 누수가 언제부터 시작된건 지는 잘 모르겠지만 눈에 보일정도로 물에 젖어있던 시간은 12시간정도로 생각됩니다. 터졌던 관은 …
더보기
윗층 화장실 물 내릴 때 소음입니다.
931
|
G
이선행
|
댓글
1
|
2021.02.08
안녕하세요. 우선 문제를 이야기함에 앞서 이런 사이트가 있다는것에 대하여 감사하고 또 해결 방안을 제시해주실수있는것에 대해 또 감사하다는 말씀을 먼저 올립니다. 제가 살고 있는 집…
더보기
화장실 천장 배기구 문의 드립니다
930
|
G
문선미
|
댓글
3
|
2021.02.05
안녕하세요 아파트 아래층 담배 냄새로 인해 화장실 환풍기를 전동 댐퍼로 교체하였는데도 냄새가 유입되어 자바라 관을 빼고 환기구 안쪽을 살펴보았습니다. 육안으로 보니 방화 댐퍼 깊숙…
더보기
안녕하세요. 지역난방 배관 비행기소리 질문입니다.
929
|
G
문형배
|
댓글
1
|
2021.02.04
1. 현재 지역난방으로 주방 싱크대 아래 분배기에서 밸브가 열리고 닫히는 구조입니다. 2. 거실 온도가 낮아져 분배기가 열리면 거실에서 특정하기가 어렵지만 천장이랑 벽면에서 비행기…
더보기
아파트 내벽 균열관련
928
|
G
hongsim
|
댓글
1
|
2021.02.04
안녕하세요. 아파트 내벽 균열관련 문의드립니다. 외벽과 맞닿아있는 뒷베란다 내벽이구요. 샤시에서부터 아래로 균열로 보이는 흔적이 발견되었습니다. 외벽쪽에서 물기가 들어오는지 균열을…
더보기
단열재를 뚫고 나온 철근(?)이 있는것 같습니다.
927
|
G
하자없는
|
댓글
1
|
2021.02.03
안녕하세요. 오늘 갑자기 거실 모서리 아래 귀퉁이에 곰팡이가 좀 피어있는걸 보고 벽면을 만져보니 아랫부분이 확연히 중간 부분에 비해 차갑게 느껴지고 곰팡이 주변은 눈에 보이는 물방…
더보기
샤시 하단 실리콘누락 누수 여부
926
|
G
고형진
|
댓글
3
|
2021.02.03
안녕하세요 제작년 12월에 신축으로 입주했습니다. 그런데 방 한곳 창문 아래쪽에 곰팡이(?)같이 벽지가 바랬습니다. 확인해보니 창틀 밖에 하단에 실리콘이 누락되어있었습니다. 하자수…
더보기
결로방지단열재 관련하여 문의드립니다.
925
|
G
민호
|
댓글
7
|
2021.02.03
안녕하세요 전에 결로방지 단열재 규격이 300mm로 시공되어있어서 문의한적이 있는데요 도면을 받아봤더니 450mm로 시공되는게 맞더라구요 결로가 발생하지 않은 다른벽체들도 모두 3…
더보기
욕조 틈새
924
|
G
김하나
|
댓글
1
|
2021.02.02
욕조 하부와 상부가 만나는 곳에 틈이 있어요. 물이 흐르면 그 사이로 쏙~ 들어가더라구요. 계속 물이 들어가다 보면 곰팡이 생길 것 같아서 실리콘 처리 해달라고 하자 접수해서 왔는…
더보기
샷시 고정을 칼블럭 나사 없이도 하나요?
923
|
G
하자없이
|
댓글
1
|
2021.01.31
확장된 방이고 이중창으로 되어 있는 샷시가 있습니다. 크기는 대략 가로 2m 세로 2m 정도 될것 같습니다. 그런데 칼블럭 나사가 윗부분에만 4개 박혀있고, 좌 우 아래에는 하나도…
더보기
집이 추워요
922
|
G
소다수
|
댓글
1
|
2021.01.31
신규 주택 건축주입니다. 20.12.30 겨울에 입주하였습니다. 매일 집 때문에 스트레스를 받다가 우연히 건축사이트를 보게 되어 이렇게 도움을 요청합니다. 90평(30평식 3층) …
더보기
지하주차장 바닥 배수를 위해 바닥을 경사지게 만들어 차가 저절로 굴러갑니다.
921
|
G
지하주차장
|
댓글
1
|
2021.01.31
제목 그대로 지하주차장 배수 때문에 바닥을 구배를 줬다는데 주차공간 스토퍼쪽으로 구배 안주고 사진처럼 바닥 구배 줘서 기서 N으로 놓으면 차가 내려가요 건설사는 배수로 구배줘서 그…
더보기
현관문 결로 및 기밀불량
920
|
G
박영
|
댓글
5
|
2021.01.30
안녕하세요, 일전에 현관문 결로 및 기밀불량건으로 아래와 같은 문의를 드렸었습니다. 상세한 답변 주셔서 감사합니다. http://www.phiko.kr/bbs/board.php?b…
더보기
옥상 출입문 전등 달려있는 부분이 이상합니다.
919
|
G
궁금합니다
|
댓글
3
|
2021.01.30
안녕하세요. 눈이 와서 눈을 치우려고 옥상에 올라가보니 , 출입문 상단에 등이 달려있는 저부분이(첨부파일 사진에서 빨간 노끈으로 묶어놓은 콘크리트 부분) 오른쪽으로 눈에 띄게 틀어…
더보기
(사진첨부합니다)침수 후 콘크리트 건조 시간은 얼마나 걸릴까요?
918
|
G
최선희
|
댓글
1
|
2021.01.29
상가에 물이 10센터정도로 3일정도 차 있었고 물이 샌곳은 수리를 완료하였습니다. 문제는 난방방식이 전기 판넬인 점입니다. 침수되었던바닥재와 전기판넬을 모두 걷어내고 지금 열풍기와…
더보기
복층빌라 탑층 지붕 결로관련 문의 드립니다.
917
|
G
조병진
|
댓글
5
|
2021.01.29
서울 관악구의 복층빌라 탑층에 거주하고 있는 사람입니다. 2015년 3월 사용승인된 건물이며 3동이 있는 빌라건물입니다. 저희 건물은 1층당 2가구가 있는 형태입니다. 탑층 최상단…
더보기
글쓰기
311
312
313
314
315
316
317
318
319
320
Search
검색대상
제목
내용
제목+내용
회원아이디
회원아이디(코)
글쓴이
글쓴이(코)
검색어
필수
Login
Login
자동로그인
회원가입
|
정보찾기
Category
자주 묻는 질문
설계/시공관련 질문
하자/불편 관련 질문
열해석관련 질문
Energy# 관련 질문
WUFI 관련 질문
이런 저런 이야기...