서비스면적 확장 및 내력벽 구분 및 철거 관련 문의

설계/시공관련 질문

질문 전에 먼저 검색을 해주세요.

 

서비스면적 확장 및 내력벽 구분 및 철거 관련 문의

G 정상수 9 3,453 2024.03.28 16:24
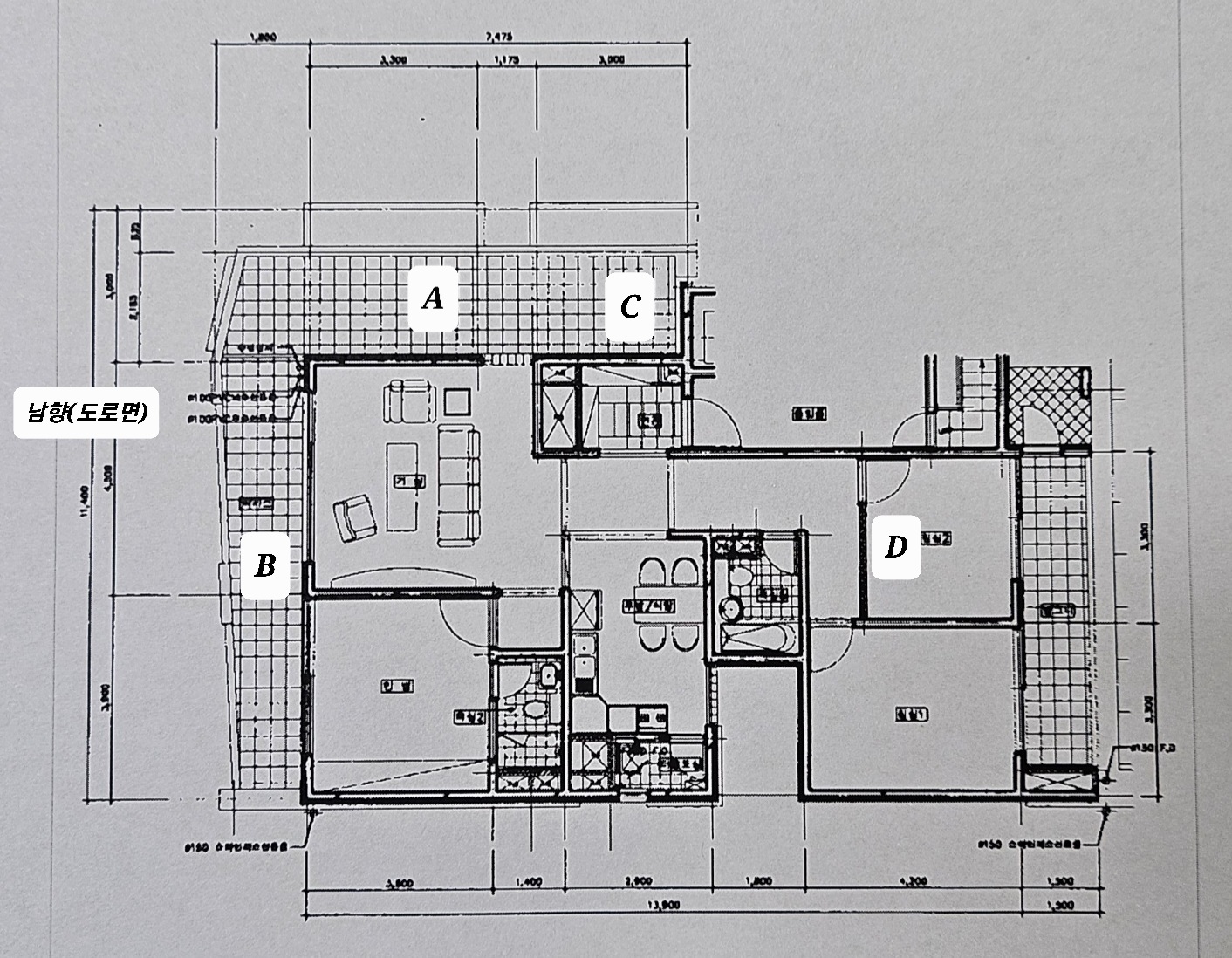
안녕하세요 몇가지 궁금한 점이 있어 글을 작성합니다.

 

1. 첨부파일 내 표기된 A, B 구역이 발코니인지 베란다인지

    (6층 아파트이며 도면은 6층)

 

2. C 표기 하단, D 표기 좌측 벽이 내력벽인지 여부

 

3. 1과 2의 결과로 미루어보아 A, B 구역을 확장하고 C 하단으로 현관에서 들어오는 출입구 변경, 

    D 좌측 벽 철거가 가능한 것인지가 궁금합니다.

 

감사합니다.

Comments

M 관리자 2024.03.26 22:27
안녕하세요.

1. 아래도 같은 평면이라면 발코니입니다.
2. C는 내력벽, D는 비내력벽으로 보입니다.
3. D는 철거가 가능하고, C도 현관문 폭 정도의 철거만 할 경우 가능할 확률이 높으나, 내력벽이므로 건축사를 통한 설계를 하면서 구조기술사의 판단을 받아야 합니다.
C의 전체 철거는 불가합니다.
G 정상수 2024.03.26 22:44
답변 감사합니다 그런데 아래층 평면도를 구할 수가 없는 상황이고
두번째 사진에서 보시는 것 처럼 5층까지는 평범한 외벽으로 되어있고
6층은 판넬로 되어 있는 외벽으로 확장된 것으로 보이는 점이 우려스러워 여쭈어 본 것인데
평면도 없이 확인할 다른 방법은 없는 것인지요?
M 관리자 2024.03.26 22:57
아 그렇네요..
이 부분은 확장을 하기 전에.. 판넬로 되어 있는 부분이 불법 증축인지 확인해 보아야 합니다. 확인은.. 구/군청에 건축물대장을 발급해 보시면 알 수 있습니다.

불법 증축이라면 확장은 불가하며, 원상 복구가 되어야 합니다.
G 정상수 2024.03.26 23:15
제가 질문 전후관계를 잘 설명을 못드렸네요
그래서 불법증축인지 확인을 목적으로 발코니인지 베란다인지 확인을 하여 법령을 따져보려는 목적이었습니다.
아니면 저런 증축을 실시했을때 기록이 남는 공문서가 있을까요? 없으면 불법증축인지 여부를 판단하기가 어려운것일까요
M 관리자 2024.03.26 23:41
네 말씀드린 건축물대장을 발급해 보시면 바로 알 수 있습니다.
도면도 나와 있고, 허가 면적도 나와 있는데, 도면이 없더라고 면적은 있습니다.
증축을 했다면 그 기록도 있고요.

잘 모르시면, 발급받은 건축물 대장을 비밀글로 올려 주세요.
G 정상수 2024.03.27 06:24
M 관리자 2024.03.28 16:24
올려 주신 도면과 건축물 대장을 비교해 보았는데요..
발코니를 제외하고 건축물 대장의 면적과 같습니다. 즉 발코니 면적은 전용면적으로 들어가 있지 않기에 증축허가를 받지 않은 결과입니다.

불법건축물이라서, 혹시 몰라 올려 주신 사진은 임의로 삭제를 하였습니다. 양해 부탁드립니다.
G 정상수 2024.03.29 19:26
자세히 알려주셔서 감사합니다
M 관리자 2024.03.30 14:17
감사합니다.
Category