기초 슬라브 포치 부분 분리 타설 조건에서 포치 기둥으로 인해 슬라브가 갈라지는 문제

설계/시공관련 질문
질문 전에 먼저 검색을 해주세요.

 

 


기초 슬라브 포치 부분 분리 타설 조건에서 포치 기둥으로 인해 슬라브가 갈라지는 문제

1 regmbnick 12 2,536 2023.03.03 01:31
안녕하세요. 스틸하우스로 건축 계획 중입니다. 기초 콘크리트의 열교로 인해 협회의 자료를 참고하여 1층의 포치(1층 포치는 한 곳이기에 '포치 1'이라 부르겠습니다.)를 분리 타설하는 것으로 설계했습니다.(분리된 경계에는 50T 정도의 XPS를 둡니다.)
 
구조 검토도 끝냈구요. 다만, 포치1에 기둥이 하나 있는데, 해당 기둥이 분리 타설된 포치-1의 기초 콘크리트 슬라브의 한 곳에 힘을 주어 지지하기에 기초 슬라브 갈라짐이나 깨짐이 발생할 것으로 보입니다.
 
분리 타설은 했지만, 기둥이 있는 조건에서 갈라짐을 막기 위해 협회 회원사인 TB 블럭을 사용하려고 검토 중입니다. 그 외에 다른 방법이 있는지, TB블럭이 현명한 판단인지 알기 어렵습니다. 의견 부탁드립니다.

화면 캡처 2023-03-03 011825.png

 

화면 캡처 2023-03-03 012933.png


화면 캡처 2023-03-03 003245.png

 

Comments

M 관리자 2023.03.03 19:53
안녕하세요.
두가지로 나누어 말씀을 드려야 할 것 같은데요.

가. 구조기술사의 확인이 되었다면 별도로 고려될 것은 없습니다. 질문 주신 것 까지가 모두 포함된 것일테니까요..
나. 그럼에도 불구하고 만에 하나, 편심하중이 걸리는 것이 고려되지 않았다면.. 아래와 같이 변경이 되는 것이 더 낫긴 합니다.

-------------
포치 판의 하부에 설치되는 단열재의 두께가 너무 두꺼워 보입니다. 동결을 막기 위한 두께면 되고, 지역에 따라 다르긴 하지만, 100mm 면 충분합니다.

------------
포치의 마감은 건식마감으로 하는 것이 좋습니다. 그게 조금은 이상하게 느껴질 수 있겠고, 시공사의 경험치에 따라 구현 가능할지가 결정되긴 하지만, 할 수만 있다면 지속적으로 하자없는 마감을 만들어 낼 수 있습니다.

------------
이를 모두 고려할 때 기초의 형태는 아래와 같습니다.
M 관리자 2023.03.03 19:54
만약 여의치 않다면.. (감각적으로) 포치의 기초판의 좌우로 300mm 만 키우면 무리가 없어 보입니다.
1 regmbnick 2023.03.04 02:55
감사합니다. TB블럭을 제외하고서도 실행할 수 있는 방법이 있었군요. 설명하신 바와 같이 기둥 지지 부분만을 아래에 작은 면적의 기초 콘크리트를 묻고 건식 마감을 하는 것이 비용적으로도 또는 공사의 편의성에도 용의해 보입니다. 고견 감사합니다.
M 관리자 2023.03.04 07:46
그럼데도 불구하고 이 모든 것은 구조기술사의 확인을 받으셔야 합니다. 기초판의 두께도 계산되어야 하고요.
G dsk244 2023.04.03 04:47
안녕하세요. 올려주신 요약 도면을 보니 포치의 기둥을 건식 마감 후 판석 위에 고정하라는 의미 같습니다. 이럴 때 기초 콘크리트 슬라브에 고정하는 것보다 불안정하지 않은지요? (초록색 표시 부분)

그리고, 건식 마감 아래에 기둥을 지지할 수 있는 콘크리트 구조물을 두는데, 잡석다짐과 버림콘크리트 위에 만들 필요는 없는건가요? (노란색 표시 부분)
M 관리자 2023.04.03 16:25
아 그렇진 않습니다.
쇄석 속에 기둥을 그리지 않았을 뿐, 기둥은 기초까지 내려가야 합니다.
기초 하부의 잡석다짐 등도 생략했을 뿐.. 하셔야 합니다.
1 regmbnick 2023.04.04 05:47
스틸 기둥을 지중 아래로 내려 고정하라는 말씀인가요? 줄기초 형태의 기초를 만든 다음 지상에서 고정하는 것으로 이해됩니다.
M 관리자 2023.04.04 10:27
그렇긴 한데 독립 기초를 의미했습니다.
위에 올려드린 그림에서 점선 모양이 독립기초의 사각형 입니다.
1 regmbnick 2023.04.07 16:28
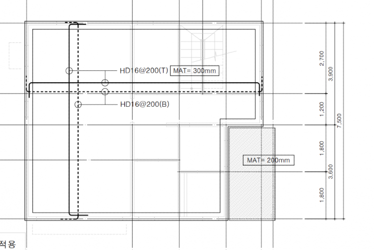
감사합니다. 기둥으로 내려오는 하중을 계산해봐야 알겠지만, 보통적으로 해당 규모에서 첨부한 사진과 같이 구성했을 때 철근 규격은 16이면 적당할까요? 말씀하신 부분들을 이해하고 손으로 간단히 그려봤습니다.
M 관리자 2023.04.07 17:33
네 개념은 정확히 이해를 하셨습니다. 고맙습니다.
철근규격과 기초판의 크기는 구조기술사의 구조계산을 따르는 것이 가장 좋습니다.
1 regmbnick 2023.04.07 17:35
감사합니다. 항상 배워갑니다
M 관리자 2023.04.07 17:46
감사합니다.
Category