신축아파트 외벽 붙박이장

설계/시공관련 질문

질문 전에 먼저 검색을 해주세요.

 

신축아파트 외벽 붙박이장

G 신축입주 1 2,140 2022.08.14 23:47

안녕하세요,

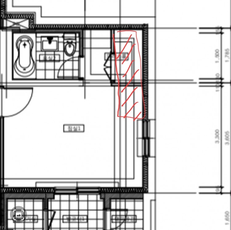
신축아파트에 곧 입주하는데 안방 외벽에 붙박이장설치가 가능할지 문의드립니다. 사진의 빨간색 표시한곳에 설치할까 고민중이고 단열재로는 콘크리트 옹벽앞에 경질우레탄 145t가 사용되었다고 합니다. 

Comments

M 관리자 2022.08.15 09:42
네 그 정도면 가능하나...

1. 붙박이 장 뒷면의 위 아래에 통기구를 만들어야 하며
2. 해당 실에 온습도계를 사 두셔서 습도 관리를 해주셔야 합니다.
Category