루프드레인 설계 관련 질의드립니다.

설계/시공관련 질문

질문 전에 먼저 검색을 해주세요.

 

루프드레인 설계 관련 질의드립니다.

G 로사키 3 5,782 2021.10.09 10:57

안녕하세요. 매번 협회에서 많은 글들을 검색하고 배우고 공부하며 업무에도 많은 도움 받고 있습니다.

질의 전, 진심으로 감사드린다는 말씀 먼저 올립니다.

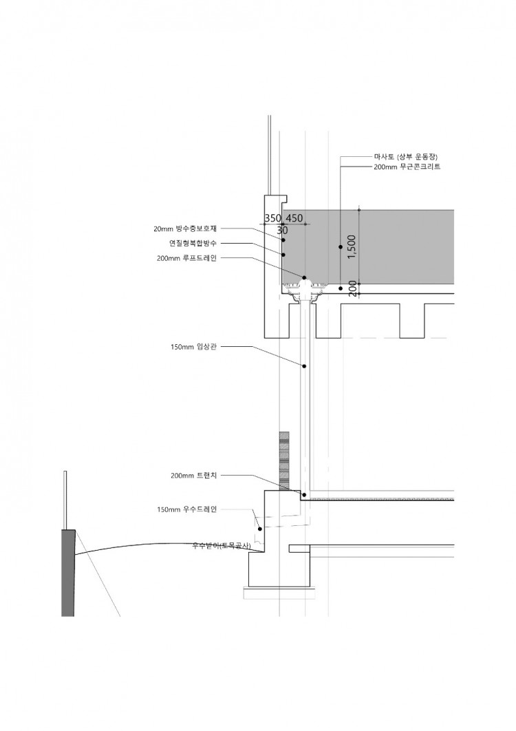
단면드레인 문의_1.jpg

 

[상황]

현재 설계중인 지하 공영주차장의 상황입니다.

상부에 마사토 포장이 올라가며, 그 위에는 운동장과 조경이 설치될 예정입니다.

 

토목의 물빠짐 설계 (맹암거, 측구)가 진행중이지만 아무래도 많은 우수가 주차장 상부 지붕위로 유입될 경우 빠질 수 있는 드레인이 필요하다는 것이 발주처 의견입니다.

 

첨부드린 도면의 상황은 주차장 지붕슬라브 보 사이의 공간에 200mm 루프드레인을 설치하여 기둥에 부착한 150mm 입상관으로 내려보내고 바닥 200mm 트렌치를 지나서 (발코니 드레인처럼 관은 통과시키고 거름망을 설치하려고 합니다. 관련 제품은 아직 찾지 못하였습니다.) 

하부 우수홈통으로 받아서 외부로 처리하려고 합니다.

 

 

[질문]

1. 상부 루프드레인에 이물질, 슬러지가 막을 수 밖에 없는데, 이를 방지할 효과적인 방안이 있을까요? 

   (배수판 2겹 겹쳐까는 방법, 부직포, 쇄석 등의 방법이 있는 것 같은데 상세도가 명확하게 구성되지가 않습니다.)

2. 입상관, 트렌치 거름망, 외부 우수드레인 재질 (PVC 이중관 등으로 사용하여도 될까요?

   외부에 달아 맬 때는 STS 선홈통을 적용하였는데, 내부 기둥에 부착하다보니 페인트 도색 등의 이유로 PVC 를 사용하고 공동주택 발코니처럼 통수, 거름망을 함께 적용하려고 합니다.

3. 루프드레인의 총 개수는 200mm 12개 입니다.

   구조체 상부에 마사토 포장이 되어 있지만 일반 지붕으로 생각하고 우수면적계산을 하였습니다. 물론 노출된 지붕보다는 유입량이 적을 것으로 판단됩니다. 다른 계산법이 있거나 대안이 있는지 궁금합니다. 

4. 루프드레인의 경우 계산값이 200mm 인데 입상관의 경우에는 100mm 도 넘치는 상황입니다.

    joint 등을 고려하여 150mm 가 예상되는데 정확한 기준은 모르겠습니다. 혹시 아시는 분 있으시면 지도 부탁드립니다. 

   주철제 루프드레인 200 ---> PVC 소켓 (200 -> 150) ---> PVC 입상관 150 

   이런 형식으로 연결되는지요.

 5. 파라펫 마감선에서 450을 이격하여 루프드레인을 설치하였는데 300 정도 이격하면 무리 없다는 정보를 보았습니다. 첨부된 사진과 같은 상황이면 제대로 기능할지 문의드립니다.

 

 

추가로 파악하시기 위해 필요하신 자료가 있으시면 말씀주시면 최대한 답변드리겠습니다.

바쁘신 와중에 많은 도움주시는 분들께 다시한번 진심으로 감사드립니다.

어려운 시기 모든분들 건강하시고 행운 깃드시길 기원합니다.

Comments

M 관리자 2021.10.09 18:16
안녕하세요..

1. 기본적으로 토목에서 배수계획을 잡게 되므로, 표면수의 처리는 될 것으로 보고.. 침투수의 처리만 되면 될 것 같습니다.
방수층 위에 무근콘크리트를 올리더라도 무근 위에 흙이 올라가면, 방근을 위한 부직포가 깔리는 것이 좋습니다.  이 때 이 부직포를 활용해서 배수구 전체를 덮어 주면 될 것 같습니다.

2. 외기 노출일 경우, 철재가 좋습니다. 아무래도 동파의 우려가 있기 때문인데요.. 그럼에도 불구하고 PVC 이중관도 사용가능하긴 합니다.

3. 마사토의 경우 침투수량이 매우 많은 종류이기에.. 일반 지붕 면적으로 보시는 것이 맞습니다.

4.  다른 방법은 없어 보입니다.

5. 네 가능하기는 하나.. 하부의 콘크리트 부분을 관통할 때.. 구조도면에서 철근간격을 체크해 보셔서, 해당 지름이 통과할 수 있는 위치를 선택하셔야 합니다.
G 로사키 2021.10.11 09:10
관리자님, 질문 별 상세하고 명확한 답변 진심으로 감사드립니다. 휴일에도 확인 주신 덕분에 신속하게 확인할 수 있었습니다. 노고 많으십니다.
M 관리자 2021.10.11 10:37
감사합니다.~
Category