신축주택 설계,단열 관련 질문드립니다.

설계/시공관련 질문

질문 전에 먼저 검색을 해주세요.

 

신축주택 설계,단열 관련 질문드립니다.

 안녕하세요 충북 제천에 신축 단독주택을 계획중인 예비건축주의 자녀입니다. 

부모님의 노후를 위해 짓는 주택이어서 저도 이것저것 공부하며 패시브협회의 도움을 많이 받고 있습니다.

 

 제천이 겨울에 매우 추운 지역이어서 단열에 신경을 많이 쓰고 있는데 예산문제로 패시브하우스 시공은 어려울 것 같고 저에너지하우스에 가까운 집다운 집을 만드는게 목표입니다. 그런데 정작 계획은 지하1층, 지상1층 총 2층짜리로 협회에서 권장하지 않는 지하실을 만들 생각이라서 정말 생각이 많습니다. 

 

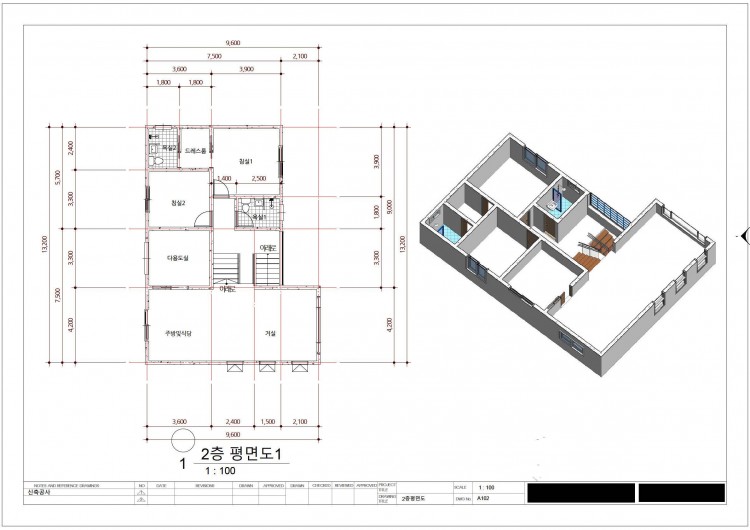
지인분 소개로 지역건축사사무소에서 가설계를 했는데 아버지가 구상한 평면을 도면으로 옯긴 것 뿐이어서 잘 되고 있는 건지 의문이 많이 생겨서 질문을 남김니다. 설계도면도 함께 첨부하니 참고해주시기 바랍니다.


 

1) 서쪽면의 경사지를 이용해 지하1층 주차장을 만들 계획입니다. 지하의 모든 좌측면과 후면이 땅에 접하는 부분이고 주차장입구와 썬큰부분은 개방되어 있습니다. 외단열을 하더라도 주차장 도어가 기밀하지 못하면 주차장 내부와 맞닿는 방1, 화장실,보일러실,계단실 겸 현관의 벽도 외단열을 해야 할까요?

 

2) 지하실 외단열에 대한 영상을 여러번 봤는데 외단열을 잘 했어도 혹시 모를 누수를 위해 이중벽을 하는거라면 외단열을 잘 하고 이중벽을 안 했을 경우에는 누수에 대한 대비책이 없는건가요?  

 

3) 지하에 전면은 주차장차고문이 설치되고 방1에는 썬큰으로 나가기 위한 창호(폴딩도어말고 기밀이 좋은 거실용 창호)가 설치될텐데 자주 열고닫지 않는다면 환기장치가 필요할까요?

 

4) 외단열을 잘 해도 외벽쪽에는 붙박이장 설치는 권장하지 않을까요? 자리가 애매해서 지하실 계단 앞 외벽에 접한 면에만 신발장 시공이 가능할 것 같습니다. 신발장도어를 갤러리도어로 하면 좀 괜찮을까요?

 

5) 올해 겨울이 오기전까지 지하 철근콘크리트 구조부분 공사와 목조기초를 마무리하려면 최소 언제까지 착공해야 가능할까요? 제천이 서리도 빨리 내립니다ㅜㅜ

 

 지금 보니 주방과 거실 아래는 지하주차장 천장과 켄틸레버 구조여서 실제로 시공이 가능한 구조인지와 단열,난방효율이 문제일 것 같습니다. 이게 다 비용상승으로 이어지겠죠... 이것저것 고려하다보면 설계가 많이 변경될 것 같습니다.

 

긴 글 읽어주셔서 감사합니다. 

 

Comments

G 정광호 2021.04.08 19:49
안녕하세요. 잡자재의 정광호입니다.

1) 주차장의 오버헤드도어는 기밀성능과 단열성능이 현저하게 낮음으로 내부 벽면과 천장에 단열재를 해주셔야합니다.  살아보시면 아시겠지만 차고는 그냥 밖이랑 다름없어요. ^^

2)  외단열은 여름철 결로를 방지하기 위한 것이고 이중벽은 구조체의 크랙 및 단열의 누락으로 결로가 생길 경우를 대비하는 것입니다. 지하는 늘 물에 대한 대비를 하는 것이 최선인 것 같습니다.

3) 집 전체가 전열교환기 한대로 커버가 가능한 면적임으로 굳이 부분적으로 환기설비를 제외 할 필요는 없을 것 같습니다. 문을 자주 열고 닫지 않는다면 실내에서 발생하는 여러 오염물질을 제거하고 호흡에 필요한 신선한 공기를 공급하기 위해 더더욱 환기장치가 필요합니다.

4) 외벽면에 장을 설치하게 되면 장의 뒷쪽 합판과 벽면 사이에서 곰팡이와 결로가 생기게 됩니다. 도어를 갤러리로 바꾸신다고 방지할 수 없습니다. 외벽에 붙박이장은 곧 곰팡이와 결로라고 생각하시면 됩니다.

5) 토목작업을 제외하고 한 층 타설에 열흘을 잡으시면 될 것 같습니다. 매트콘크리트 타설 1층 타설 2층 타설 여유있게 두달안에 골조를 끝낸다고 보시면 됩니다. 장마가 끝나고 8월 말 쯤에 시작하시면 될 것으로 보입니다.
1 5년만늙기 2021.04.08 20:26
빠른 답변 감사합니다^^ 영상을 통해 뵙던 분이 답변을 해주시니 뭔가 신기하네요ㅋㅋ
답변해주신 내용들 보니 가장 기본이 되는 내용들이 었는데 좀 더 찾아보고 생각할 걸 그랬네요.
알기 쉽게 설명해주셔서 이해됐는데 또 질문이 생겼습니다. 뫼비우스의 띠인가요
1,2) 정리하면 주차장쪽은 외단열이 아니라 내부벽과 천장에 내단열 / 방1과 화장실, 계단실 등은 외단열,땅과 접하는 동,북쪽에 이중벽 설치 이렇게 될까요? 내단열하는 주차장도 땅과 접하는 곳은 이중벽은 들어가는 건가요?
4) 현관,계단,신발장 위치를 다시 재고해봐야겠네요
5) 본문에 쓰지 않은 것 같은데 지하층은 RC이고 지상층은 경량목구조입니다. 그래도 8월말이어야 할까요?
 5개월 남짓 남았는데 이제 설계단계이니 시간이 없네요.
M 관리자 2021.04.09 07:34
안녕하세요.
주차장은 이중벽까지 필요로 하지는 않습니다. 그저 바닥 테두리를 따라서 유도배수로만 잘 만들어 주시어요.

외단열이 충분히 건전하면 벽에 가구를 대셔도 괜찮습니다. 지역별로 계산을 해보아야 겠습니다만, 단열재의 두께는 현행법에서 정한 두께보다 더 늘어나지는 않습니다. 그저 건전한 시공과 열교만 정밀히 피하시면 되세요.

지상이 목구조면 9월 중순까지, 늦어도 10월초까지 착공을 하시면 되는데요.
착공 직후 준비단계가 있기에.. 바로 골조를 올릴 수 있는 것은 아니어서요.
시공사가 정해지면, 이 준비단계 (가설 등)를 미리 챙길 수만 있게 하시면 보름정도의 시간을 버실 수 있으세요.
1 5년만늙기 2021.04.10 09:25
답변감사드립니다. 관리자님
공사비와 시간 문제로 지하실은 삭제할 것 같지만 덕분에 지하실 단열방법에 대해서 어렴풋이 이해를 했습니다.
부모님 집이 이미 팔려서 9월에 바로 새 집으로 입주해야 하는 상황인데 장마철을 낀 5개월 안에 제대로 된 설계와 시공이 과연 가능할 지 미지수라서 마음이 급해지네요.

혹시 표준주택으로 시공을 한다면 준비기간+시공기간이 얼마정도 걸릴까요?
M 관리자 2021.04.10 20:44
9월 착공이 아니라 입주라면, 죄송한 말씀입니다만.. 중간에 임시 거처를 마련하시고 차근차근 하시는 것이 나을 것 같습니다. 제대로 하기엔 불가능한 시간입니다.

표준주택은 인허가 1개월, 시공 4개월입니다만 그래도 한달의 여유는 두고 해야 합니다.
Category