복사냉난방 시스템을 구축하려면 기계실 크기가 어느정도 라야 할까요?

설계/시공관련 질문

질문 전에 먼저 검색을 해주세요.

 

복사냉난방 시스템을 구축하려면 기계실 크기가 어느정도 라야 할까요?

1 잔꽃무늬 5 2,599 2024.10.11 12:44

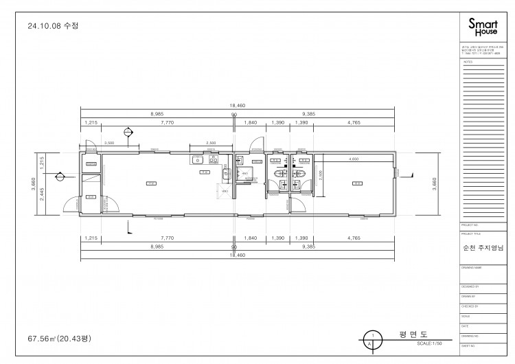
저는 현재 20평 정도의 경량 목구조 주택 신축을 위한 설계 단계에 있는 건축주 입니다.

컴포벤트 열회수환기장치 설치를 위한 기계실 최소 공간을 설계 도면에 반영한 상태입니다.

지금은 자금 압박으로 복사냉난방 설비까지는 엄두를 못 내고 있지만,

나중에 자금 여유가 생기면 복사냉난방 설비도 고려하고 있습니다.

그래서 그 때를 대비하여 지금 기계실을 넉넉하게 뽑아두고 싶은데,

20평 주택에 기계실 면적이 한계가 있어서 고민이 되네요.

나중에 복사냉난방 설비를 설치한다고 가정했을때

지금 주택 설계시 기계실 사이즈를 얼마로 하면 좋을까요?

또 기계실 사이즈 외 다른 부분을 미리 설계에 반영할 것은 없을까요?

참고, 복사냉난방 설비는 잡자재 설비를 고려하고 있고,

난방은 건식 난방으로 들어갈 예정입니다. 

추가한 평면도는 임시 평면도 입니다. 

 

Comments

11 잡자재 2024.10.11 23:47
안녕하세요
복사냉난빙을 설치하기위해서는 내경 2000×2000이 필요합니다. 만약 도시가스가 들어오는 지역에 남부나 제주 지역이 아니라면 복사냉방만을 권장드리고, 난방은 보일러로 하는 것이 낫습니다.

더해서 평면상에 화장실  출입구 간섭때문에 샤워실 변기 세면기의 순으로 배치하셨다면 휴지걸이의 설치 위치를 고려해보시는게 좋겠습니다. 휴지걸이가 배면에 위치하면 사용이 상당히 불편하거든요. 파티션을 가공해서 휴지걸이를 설치할 수도 있습니다.
2 보리엄마 2024.10.15 02:35
^^잡자재님~
1900×1900으로 하면 안되나요~;;
M 관리자 2024.10.15 08:20
1.9x1.9 까지는 괜찮습니다. 한계선입니다.
G 시그림나무 2024.11.06 11:28
집의 평수가 27평 인데요. 도시가스가 들어오지 않는 남부지역이면 super B를 하고, 물을 많이 사용하면 전기 온수기를 추가 하는게 나을까요? 그랬을경우 전기 사용량이 얼마나 될지가 궁금합니다. 현재 태양광 3kw 를 계획하고 있어서요.
M 관리자 2024.11.06 11:52
네 그렇게  하시는 것이 좋겠습니다. 태양광의 경우 27평 정도라면 3kWp 이상 5kWp 적정 정도일 것 같습니다.
Category