설계/시공관련 질문 41 페이지 > (사)한국패시브건축협회 (Passive House Institute Korea)
한국패시브건축협회
협회안내
임직원 및 회원사현황
조직도
인사말
주요 사업
목적 및 연혁
가입안내
협회 정관
공평성 선언문
오시는 길
공지
공지사항
협회 동정
회원사 동정
협력사 동정
보도자료 /소식
오픈하우스 소식
신청
패시브건축 인증 신청
신축
리모델링
기밀성능테스트 신청
에너지성능 현황분석 신청
건축부재 시뮬레이션 신청
실무자 교육 신청
세미나 신청
표준주택 견학 신청
장비대여신청
표준주택
표준주택
표준주택 문의
표준주택 사례
시즌1
시즌2
시즌3
시즌4
표준주택 시공과정
경량목구조
스틸하우스
RC+평지붕
자료실
기술자료
자료 내려받기
전문가 칼럼
책 소개
Passipedia 번역
질문/하자사례
자주 묻는 질문
설계/시공관련 질문
하자/불편 관련 질문
열해석관련 질문
Energy# 관련 질문
WUFI 관련 질문
이런 저런 이야기...
사례집
사례집(저에너지/패시브)
사례집(회원일반건축물)
좌충우돌 제로에너지 아파트 리모델링
인증건물 매매/임대
자재정보
단열
회원사_하이셀 : 엘에스기연
회원사_EZ Block : 이지블록
회원사_동건
회원사_정양SG
회원사_디케이보드
외단열미장마감
방수상부외단열공법(역전지붕)
회원사_주잡자재
회원사_주티푸스코리아
열교
회원사_티푸스코리아
회원사_TB Block
회원사_이비엠리더
회원사_스타빌엔지니어링
회원사_정양SG
기밀
회원사_프로클리마 : 프로클리마코리아
회원사_유로벤트 : 이루카씨앤티
회원사_SIGA : 잡자재
창호
회원사_케멀링 : 엔썸
회원사_레하우 : 유로레하우
회원사_KBE : 우신윈시스템
회원사_살라만더 : 에스알펜스터
회원사_바우엔 : 승효
회원사_디크닉 :삼익산업
회원사_트로칼 :윈체
차양
환기
회원사_SSK : 스타즈스터링코리아
회원사_은성화학
회원사_옥토아이앤씨
회원사_휴마스터
회원사_komfovent : 잡자재
협력사_대호에이엘
설비
회원사_복사냉방 : 잡자재
회원사_ 건식난방패널 : 에코-에너다임
친환경
회원사_ESB : 프로클리마코리아
협력사_코닝정밀소재
협회안내
임직원 및 회원사현황
조직도
인사말
주요 사업
목적 및 연혁
가입안내
협회 정관
공평성 선언문
오시는 길
공지
공지사항
협회 동정
회원사 동정
협력사 동정
보도자료 /소식
오픈하우스 소식
신청
패시브건축 인증 신청
기밀성능테스트 신청
에너지성능 현황분석 신청
건축부재 시뮬레이션 신청
실무자 교육 신청
세미나 신청
표준주택 견학 신청
장비대여신청
표준주택
표준주택
표준주택 문의
표준주택 사례
표준주택 시공과정
자료실
기술자료
자료 내려받기
전문가 칼럼
책 소개
Passipedia 번역
질문/하자사례
자주 묻는 질문
설계/시공관련 질문
하자/불편 관련 질문
열해석관련 질문
Energy# 관련 질문
WUFI 관련 질문
이런 저런 이야기...
사례집
사례집(저에너지/패시브)
사례집(회원일반건축물)
좌충우돌 제로에너지 아파트 리모델링
인증건물 매매/임대
자재정보
단열
외단열미장마감
방수상부외단열공법(역전지붕)
열교
기밀
창호
차양
환기
설비
친환경
메인
협회안내
공지
신청
표준주택
자료실
질문/하자사례
사례집
자재정보
0
자주 묻는 질문
설계/시공관련 질문
하자/불편 관련 질문
열해석관련 질문
Energy# 관련 질문
WUFI 관련 질문
이런 저런 이야기...
설계/시공관련 질문
질문 전에 먼저 검색을 해주세요.
WBS 보드 위 투습방수지는 생략 가능한지 조언부탁드립니다.
12059
|
1
포세
|
댓글
10
|
2025.05.02
안녕하세요~ 건축주분이 상기와 같은 도면으로 문의를 해오셨는데 궁금한 점이 있어 글을 남깁니다. 1. 먼저 지붕의 경우 WSB보드가 방수에 가깝기 때문에 WSB 위에 있는 투습방수지는 의미가 없어 보이며 이를 생략 가능한지 궁금합니다. 2. 도면에 지붕 구성은 불투습 WSB 위에 불투습…
더보기
구옥 역전지붕 문의합니다.
12058
|
1
마틴킴
|
댓글
15
|
2025.05.02
안녕하세요. 아래 사진과 같은 90년대 후반에 지은 집을 리모델링 하려합니다. 구조는 약 1층 25평에 2층 15평 정도입니다. 대수선을 위해 건축사와 미팅중인 상황입니다. 역전지붕으로 시공하려고 합니다. 1층 처마가 위 그림과 같이 처마가 더 길게 빠졌고 2층은 1층보다 작습니다. 위…
더보기
지하외벽 상세도
12057
|
G
다아리이
|
댓글
10
|
2025.05.02
소중한 답변항상 감사합니다. 공부할것도 많고 궁금한것도 많네요 .. 항상공부하게 도와주시는 협회분께 항상 감사드립니다. 비슷한 질문들을 읽어봤습니다. 그래도 잘하려는마음에 궁금한점 질문드립니다. 도로가 높은 대지 특성상 1층이면서도 한쪽면이 흙에 접하는 부분에 하자없는 시공디테일을 고민…
더보기
유튜브 목조건축 라이브방송 중 기초단열 관련해서 질문이 있습니다
12056
|
G
동결
|
댓글
4
|
2025.05.02
안녕하십니까 지금 패시브 목조주택 건축중인 건축주입니다. 협회장님이 올려주신 목조건축 유튜브를 복습 중인데 궁금한 부분이 있어서 질문 드리게 되었습니다. 유튜브 라이브 '목조건축6'을 보면 기초단열, 동결심도와 지중열에 대한 부분이 나옵니다. 기초 하부에 단열제+수평단열재를 붙이면 기초…
더보기
우레탄 시공 규사 섞음
12055
|
G
땅콩아빠
|
댓글
1
|
2025.05.01
안녕하세요 고수 형님들.. 제목대로 우레탄 시공할때 규사를 섞으려 하는데. 1. 규사의장점이 뭔가요?(경험에 비추어 보셨을때요) 2. 하도 중도 상도에 다 섞나요? 3. 어떤 규사가 제일 좋을까요? 4. 구체적으로 어떻게 우레탄 규사 시공을 해야할까요? 고수 형님들께 질문올립니당..
탈기반 설치..
12054
|
G
디테일방수
|
댓글
1
|
2025.05.01
안녕하세요 방수시트 부직포타입 시공 후 우레탄 시공을 하려는데요.. 총 53평인데 탈기반이라는 녀석이 마음에 걸려서요.. 주변 전문가 분들은 10평에서 20평에 1개씩 설치 하라는데 어느 위치에 설치 하는지가 궁금하더라고요.. 높곳에 하라는데 그럼 낮은곳엔 안 해도 되는건지.. 그리고 …
더보기
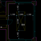
구축 아파트 도면 내력벽 검토요청 드립니다.
12053
|
G
SUPERMILK
|
댓글
1
|
2025.05.01
안녕하세요 구축 아파트의 건축물현황도를 확인중인데, 거실 확장공사 관련 샷시 날개벽 부분이 내력벽인지 비내력벽인지 확인중입니다. 보통 내력벽은 통으로 연결되어있고, 비내력벽은 해치나 도면상 내력벽와 끊어져 표기가 되어있다고 알고있는데, 해당 구축 아파트의 도면이 해치 표시는 없고, 끊어…
더보기
파라펫 및 역전방수관련질문드립니다.
12052
|
G
다아리이
|
댓글
4
|
2025.05.01
이번에 처음 역전방수 시스템 적용하려고 합니다.단독주택 높은 난간 형태의 가벽쪽 방수상세도 좀 봐주셨으면 합니다.난간및 가벽 내부면은 외부수성폐인트 계획하고 싶고, 방수턱 부분이 후레싱 처리가 외관상 마음에 안들고...이것도 저것도 아니면 난간옹벽 내부에도 전체에 마감재 본드접착시공도 …
더보기
내단열 건물 추가 외단열 시공시 주의점이 궁금합니다.
12051
|
G
dsclee
|
댓글
1
|
2025.05.01
안녕하세요, 외단열 시공에 대해서 질문을 드립니다. 내단열이 된 3층 건물입니다. 결로 현상으로 인해 외단열을 추가 시행하려고 합니다. 건물 전체를 하기에는 비용의 문제가 있어서 결로가 나는 북쪽 벽면과 북쪽과 이어지는 3층 절반만(1세대만) 디귿(ㄷ)자 형태로 외단열을 하려고 합니다.…
더보기
협회표준계약서
12050
|
G
좋은집
|
댓글
1
|
2025.05.01
협회 표준주택을 지으려고 협회유튜브를 전부 보았습니다. 질문은 두가지 입니다. 1. 유튜브 라이브 1편에서 회장님께서 말씀하시기를 건축주주들이 무엇을 준비해야 될지 모르니까 건축주들이 참고할수 있도록 국토부 표준계약서 말고 협회표준계약서를 올려 놓겠다고 하셨는데 협회 어디에서 다운받을수…
더보기
방통 중 몰탈 부족
12049
|
G
올수리
|
댓글
3
|
2025.05.01
안녕하세요, 이사갈 곳이 오래된 빌라여서 올수리 리모델링 공사를 진행하고 있습니다. 어제 방통 작업중에 몰탈 무량시 부족하다며 이틀 후 손미장으로 마무리하겠다고 합니다. 업체에서는 이런 경우가 흔히 일어나는 것이고, 이후 문제될 점도 없다고 합니다. 저희는 이미 건조된 부분과 손미장하는…
더보기
배수관련문의
12048
|
G
시그림나무
|
댓글
5
|
2025.04.30
안녕하세요. 배수 관련해서 질문이 있습니다. 배수가 안되는 땅에 대한 세심하게 계획하고 문제를 해결하려고 하시는 권희범 빌더님의 과거의 질문도 있었는데요. (https://www.phiko.kr/bbs/board.php?bo_table=z4_01&wr_id=8369#c_8400)…
더보기
역전지붕 시공관련 질문 입니다
12047
|
1
독고다이
|
댓글
3
|
2025.04.30
안녕하세요... 한국패시브협회에서 많은 정보를 얻고있는 건축주입니다. 역전지붕관련 질문입니다. 피코네 유튜브동영상에서 역전지붕 시공관련 비용절감을 위해 투습방수지,배수판은 생략해도 된다고해서 시트방수,단열재 2중시공 ,토목용부직포,쇄석으로 마감하려 합니다.. 첫번째:그중 단열재부착시 접…
더보기
건식난방
12046
|
G
안티
|
댓글
2
|
2025.04.30
도면 첨부 합니다 도대체 이 건식난방이 이해가 가지 않는데 이도면 대로 시공했을때 아무 이상이 없는건가요? 바닥에 평활도 요구는 있었습니다 그런데 이정도의 평활도를 맞추는게 가능한건지 지금 제가 이도면을 보고 예상하는건 바닥의 평활도가 설령 오차 범위여도 마지막 마감에는 과연 가능한건지…
더보기
하수도 통기관에 중력댐퍼 사용
12045
|
G
소드락
|
댓글
9
|
2025.04.30
안녕하세요? 하수도 통기관이 건물 외벽으로 나 있어, 오가며 가끔 불쾌한 냄새가 나곤 합니다. 그래서 통기관에 중력댐퍼를 달아서 공기가 밖에서 안으로 들어갈 수 만 있게 하려고 하는데, 이렇게 조치하여도 될까요? 감사합니다.
RC조 외단열 후 파벽돌(타일) 마감 예정 시 외단열 시공업체 추천 요청
12044
|
1
비움
|
댓글
4
|
2025.04.30
원래는 와아드벽돌 조적을 계획했으나 벽돌 조적이 단열에 도움이 되지 못할 뿐 아니라 기능이 없다는 의견이 있어 타일 마감으로 선회하려고 합니다. EPS 구매처로부터 타일 마감 시 단열재 평활도가 중요하여 타일 시공업체에서 진행해야 한다는 얘기를 들었는데요, 궁금한 사항이 있어 문의 드립…
더보기
방통 구조 및 시공 두께 문의
12043
|
1
비움
|
댓글
12
|
2025.04.30
철콘 구조 기초 800T 되어 있고 이후 수도배관-기포콘크리트-(PE필름)EPS단열재(PE필름)-난방배관-방통수평몰탈 까지 최대 130T 정도로 구현돼야 합니다. 기포콘크리트는 통상 40~50T 올리는 것으로 알고 있어 단열재와 방통몰탈 두께는 최대 90T로 진행해야 할 듯 합니다. 1…
더보기
고층 오피스텔 - 커튼월 타입 세대 바닥 떨림 문제
12042
|
G
안전주택찾기
|
댓글
4
|
2025.04.29
안녕하세요. 유튜브나 구글에서 많은 정보 검색해보았지만 커튼월 타입 고층 건물의 바닥 떨림 사례는 검색되는 내용이 많이 없어 질문드립니다. ㄴㄱ 구조가 맞붙어 있는 고층 오피스텔 건물이며, 각 모서리 부분의 끝집만 커튼월 타입으로 시공되었습니다. 지하 1-6층은 지하 주차장, 지상 1-…
더보기
역전지붕
12041
|
1
양평누리
|
댓글
2
|
2025.04.29
일요일 유투브를 보고 질문드립니다. 이미 지붕 내단열이 되어있는 집의 경우 어쩔수 없을땐 우레탄 방수 후 배수판도 생략하고 부직포와 쇄석으로만 마감하는 방법도 선택이 가능하다는 내용을 봤습니다. 그래서 질문드립니다. 배수판과 부직포를 생략하는 대신 배수를 조금 더 낫게 진행시키기위해 약…
더보기
욕실 도막방수 및 구배몰탈 순서에 대한 조언 부탁드립니다.
12040
|
1
감자돌쓰
|
댓글
10
|
2025.04.29
안녕하세요 건식벽체에 습식화장실이 되는 공간입니다 현재 바닥에 기포가 들어가있는 상태에서 엑셀파이프가 둘러져 있습니다.(노출 된 상태) 액방없이 도막방수 3회로 마치려 하는데 추후 타일 마감을 생각했을때 공정 순서에대해 조언좀 부탁드립니다.
역전지붕 이중배수 문의
12039
|
G
소드락
|
댓글
3
|
2025.04.29
안녕하세요? 철콘 평지붕에 역전지붕 시공되어 있는 상황입니다. 평지붕슬라브 - 시트방수 - XPS - 투습방수지 - 조경배수판 - 부직포 - 쇄석 ↓ ↓ 이중배수 아래배관 홈통 투습방수지에 구멍이 났는지, 비가 오면 시트방수 위에 물이 고여 이중배수 아래 배관으로 물이 졸졸 흘러나오고 …
더보기
지하 흙막이 벽면에 단열재 설치 관련 질문입니다.
12038
|
1
이인선
|
댓글
1
|
2025.04.29
현재 시공중인 현장에 지하 흙막이 벽면에 단열재 설치가 계획되어있습니다. 흙막이는 CIP+숏크리트 로 구성, 단열재는 PF 60T 입니다. 숏크리트를 시공해도 평활도는 완벽하지 않아 보드 형태의 단열재 시공이 불가한 상황에서 열반사단열재 (프라임쉘 60T)로 시공하려 합니다. 설계사 측…
더보기
판넬 외벽 시멘트 사이딩 하지 작업 필수인가요?
12037
|
G
오비드
|
댓글
3
|
2025.04.28
판넬에 시멘트 사이딩 마감하려고 합니다. 판넬 코일은 0.5t입니다. 시멘트 사이딩 시공 시 방무목으로 하지 작업 후 시공하는 것으로 알고 있습니다. 어떤 분들은 판넬에 바로 시공하기도 하고요. 어떤 것이 더 좋은 방법인가요? 판넬에 바로 시공해도 문제가 없나요? 감사합니다.
시스템 창호 협력사 관련 문의
12036
|
1
비움
|
댓글
3
|
2025.04.28
자재정보 내 협력사 리스트 중 시스템 창호에 명시된 창호 브랜드들은 협회 기준에 맞게 시공까지 진행하는 곳들인지요. 명시된 창호 브랜드 사이트에 저희 지역 내 대리점도 발견했는데요, 이 대리점도 인증된 곳인지 궁금합니다. 또한 SNS 창호시공사례를 보고 견적문의한 업체 담당자 명함의 소…
더보기
글쓰기
41
42
43
44
45
46
47
48
49
50
Search
검색대상
제목
내용
제목+내용
회원아이디
회원아이디(코)
글쓴이
글쓴이(코)
검색어
필수
Login
Login
자동로그인
회원가입
|
정보찾기
Category
자주 묻는 질문
설계/시공관련 질문
하자/불편 관련 질문
열해석관련 질문
Energy# 관련 질문
WUFI 관련 질문
이런 저런 이야기...