설계/시공관련 질문 283 페이지 > (사)한국패시브건축협회 (Passive House Institute Korea)
한국패시브건축협회
협회안내
임직원 및 회원사현황
조직도
인사말
주요 사업
목적 및 연혁
가입안내
협회 정관
공평성 선언문
오시는 길
공지
공지사항
협회 동정
회원사 동정
협력사 동정
보도자료 /소식
오픈하우스 소식
신청
패시브건축 인증 신청
신축
리모델링
기밀성능테스트 신청
에너지성능 현황분석 신청
건축부재 시뮬레이션 신청
실무자 교육 신청
세미나 신청
표준주택 견학 신청
장비대여신청
표준주택
표준주택
표준주택 문의
표준주택 사례
시즌1
시즌2
시즌3
시즌4
표준주택 시공과정
경량목구조
스틸하우스
RC+평지붕
자료실
기술자료
자료 내려받기
전문가 칼럼
책 소개
Passipedia 번역
질문/하자사례
자주 묻는 질문
설계/시공관련 질문
하자/불편 관련 질문
열해석관련 질문
Energy# 관련 질문
WUFI 관련 질문
이런 저런 이야기...
사례집
사례집(저에너지/패시브)
사례집(회원일반건축물)
좌충우돌 제로에너지 아파트 리모델링
인증건물 매매/임대
자재정보
단열
회원사_하이셀 : 엘에스기연
회원사_EZ Block : 이지블록
회원사_동건
회원사_정양SG
회원사_디케이보드
외단열미장마감
방수상부외단열공법(역전지붕)
회원사_주잡자재
회원사_주티푸스코리아
열교
회원사_티푸스코리아
회원사_TB Block
회원사_이비엠리더
회원사_스타빌엔지니어링
회원사_정양SG
기밀
회원사_프로클리마 : 프로클리마코리아
회원사_유로벤트 : 이루카씨앤티
회원사_SIGA : 잡자재
창호
회원사_케멀링 : 엔썸
회원사_레하우 : 유로레하우
회원사_KBE : 우신윈시스템
회원사_살라만더 : 에스알펜스터
회원사_바우엔 : 승효
회원사_디크닉 :삼익산업
회원사_트로칼 :윈체
차양
환기
회원사_SSK : 스타즈스터링코리아
회원사_은성화학
회원사_옥토아이앤씨
회원사_휴마스터
회원사_komfovent : 잡자재
협력사_대호에이엘
설비
회원사_복사냉방 : 잡자재
회원사_ 건식난방패널 : 에코-에너다임
친환경
회원사_ESB : 프로클리마코리아
협력사_코닝정밀소재
협회안내
임직원 및 회원사현황
조직도
인사말
주요 사업
목적 및 연혁
가입안내
협회 정관
공평성 선언문
오시는 길
공지
공지사항
협회 동정
회원사 동정
협력사 동정
보도자료 /소식
오픈하우스 소식
신청
패시브건축 인증 신청
기밀성능테스트 신청
에너지성능 현황분석 신청
건축부재 시뮬레이션 신청
실무자 교육 신청
세미나 신청
표준주택 견학 신청
장비대여신청
표준주택
표준주택
표준주택 문의
표준주택 사례
표준주택 시공과정
자료실
기술자료
자료 내려받기
전문가 칼럼
책 소개
Passipedia 번역
질문/하자사례
자주 묻는 질문
설계/시공관련 질문
하자/불편 관련 질문
열해석관련 질문
Energy# 관련 질문
WUFI 관련 질문
이런 저런 이야기...
사례집
사례집(저에너지/패시브)
사례집(회원일반건축물)
좌충우돌 제로에너지 아파트 리모델링
인증건물 매매/임대
자재정보
단열
외단열미장마감
방수상부외단열공법(역전지붕)
열교
기밀
창호
차양
환기
설비
친환경
메인
협회안내
공지
신청
표준주택
자료실
질문/하자사례
사례집
자재정보
0
자주 묻는 질문
설계/시공관련 질문
하자/불편 관련 질문
열해석관련 질문
Energy# 관련 질문
WUFI 관련 질문
이런 저런 이야기...
설계/시공관련 질문
질문 전에 먼저 검색을 해주세요.
창호설치
6254
|
G
제이
|
댓글
2
|
2022.02.12
콘크리트 구조 타설하고 양생을 한달한다고들었는데, 다음공정인 1. 창호설치도 이 양생시간이 지나서하는건가요? 2. 창호주문이 콘크리트 타설되고 몇일이지난후즘 지나 들어가서 실측하여 주문이가능한가요. 3.타설전에 미리 주문하는경우도 많은지요?
결로방지 단열재
6253
|
3
가나
|
댓글
1
|
2022.02.12
올려주신 그림대로 결로 방지 단열재를 시공하려고합니다 오피스텔인데 열반사단열재 외단열입니다 곧 석고보드 떡가베인데요 외기접합면에 아이소핑크를 이런 식으로 붙이면 효과가 안 하는것보다는 낫겠죠? 본드폼으로 붙이면 될까요? 아니면 화스너로 할까요? 화스너 살예정이긴한데 지금 당장은 없어서요…
더보기
글라스울 또는 미네랄울 부착 방법 문의 입니다.
6252
|
2
엄광헌
|
댓글
1
|
2022.02.12
아파트에 내단열을 계획중입니다. 위와 같은 미네랄울을 콘크리트 벽면에 스터드없이 부착을 할까 고민 중인데요 이때 사용할 수 있는 알맞은 접착제가 어떤게 있는지 궁금합니다. 또는 단열재료가 글라스울일 때도 궁금하고요. 어쩌면 너무 가치없는 질문일 수 도 있겠다는 생각이 들어 검색을 통해 …
더보기
우수관 문제 문의 드립니다.
6251
|
3
가나
|
댓글
21
|
2022.02.12
상황 : 비계 철거한 상태 원래 옥상에서 많은 우수관이 내려오는데 빨간 곳에 있는 100파이 우수관을 5층에서 75파이 관 2개로 나눠시공하려고 합니다 보라색 부분은 코어비트로 파라펫 타공구간이구요. 100파이 비트로 타공해서 75파이관 구배를 좀 주려고합니다. 녹색은 PVC관 매립된 …
더보기
외벽 방수
6250
|
G
min
|
댓글
3
|
2022.02.11
지붕은 방수시트지? 투습시트지? 이런걸 발라서 방수하는걸로알고있는데, 그럼 철콘집 외단열 외벽은 무엇으로 방수가되는건가요? 목조주택 은 타이벡이란걸로 하는걸봤는데,철콘집은 뭘로 외벽방수를 하는걸까요?
몰탈과 접착되는 단열재
6249
|
3
가나
|
댓글
5
|
2022.02.11
예전에 연질 폼 시공 질문 드렸는데요 우레탄 폼이 몰탈과 접촉이 안된다고 하셨는데 비드법이나 압출법 단열재는 접착이 되는지 궁금합니다 감사합니다
난방배관 크기
6248
|
2
에어원
|
댓글
3
|
2022.02.11
일반적인 엑셀파이프를 주택 바닥 난방배관용으로 사용할 때는 20mm 짜리를 사용했습니다 그런데 PB배관으로 알아보니 15-16mm짜리를 권합니다 외단열 다세대주택의 경우 PB 16mm로 충분한지 궁금합니다 그럴 경우 배관간의 간격은 얼마가 되어야할까요? 말씀 고맙습니다^^
철근콘크리트 단열문제로 문의드립니다
6247
|
G
자솔
|
댓글
6
|
2022.02.11
안녕하세요 저는 신축 콘크리트 주택을 짓고 있는 건축주입니다. (지역은 남부지역입니다) 건축에 대한 지식이 별로 없어 제가 쓰는 단어나 말에 문제가 있어도 양해 부탁드립니다. 현재 외단열로 아이소핑크100T 를 부착하였고 원래 석재타일은 붙이려 하였으나 여러 사정상비드법 30T에 메쉬하…
더보기
지하주차장 가능여부
6246
|
G
수라수라
|
댓글
8
|
2022.02.11
안녕하세요. 다가구를 지으려고 생각중입니다. 현재 고려중인 부지가 있는데요, 지하주차장이 가능하다면 필로티로 안하고 지하 주차장을 만들고 싶어서요. 이 파란 선으로 표시된 부분을 입구로 지하주차장 설계가 가능할까요? 법정주차대수는 5대입니다. 아직 토지가 계약된 상태가 아니라 대략적으로…
더보기
기초부분 관련해서 문의 드립니다.
6245
|
1
김형철
|
댓글
2
|
2022.02.10
안녕하세요 스틸하우스 건축 하려고 준비중입니다. 기초부분을 어떻게 해야할지 생각하고 있는데요. 선생님들의 고견 부탁드립니다. 1. 위 사항대로 진행시에 기초부분 단열적인 측면에서 문제가 없을까요? 2. 기초 측면의 XPS를 매트기초 친 다음에 붙일 예정인데요. 기초 하부의 XPS는 버림…
더보기
콘크리트 타설후에 비
6244
|
G
제이
|
댓글
6
|
2022.02.10
콘크리트 타설후에 어느정도동안 비가 오면 안되는지, 오면 어느정도는 와도되는지 궁금합니다. 4월,5월이면 고사리장마가 시작된다고 하는데, 콘크리트를 타설하고 얼마나 비가 내리면 안되는걸까요. 위치는 제주도이고, 25평의 1층 콘크리트 주택 예정입니다. 그리고 콘크리트 타설후에 양생기간이…
더보기
단열 몰탈에 대해서
6243
|
3
가나
|
댓글
5
|
2022.02.10
밑에 시스템 창호 시공 질문드렸던 사람입니다~ 저도 아이소핑크 + 우레탄폼 를 쓰는게 맞다고 생각하는데요 어르신들은 단열몰탈 바르면 어떠냐 하더군요. 우선 제 생각에 1. 한일시멘트 기준 열전도율이 아이소핑크가 높고 https://www.hanilcement.com/html/busine…
더보기
이 시스템창호 성능은 괜찮은지 고견을 듣고싶습니다.
6242
|
1
밀리
|
댓글
2
|
2022.02.10
비밀글입니다.
엘레베이터 신설 질문
6241
|
1
헌집줄께새집다오
|
댓글
12
|
2022.02.10
안녕하세요. 구독자입니다. 질문드려 봅니다. 구건물에 엘리베이터를 설치할 계획 입니다. 중심상가 지역에 오래된 건물이다 보니 엘리베이터의 설치 가능성의 타진부터 쉽지는 않았었습니다. 또 건물을 대대적으로 리모델링 하는 경우에는 그때 엘리베이터를 같이 설계 하기 때문에 모든 것을 리모델링…
더보기
처마길이 관련
6240
|
2
숀리
|
댓글
6
|
2022.02.10
1. 주택의 처마길이에 따른 건축면적/바닥면적 포함여부는 구조체 중심선으로부터 1m를 기준으로 하는게 맞나요 2. 1m 초과(이하), 1m이상(미만) - 이 중에 정확한 기준표현은 무엇인지 3. 1m보다 짧으면 건축면적(건폐율)에 포함이 안되는건가요 바닥면적(용적률)에 포함이 안되는건가…
더보기
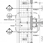
시스템창호 마감 조언 부탁드립니다.
6239
|
3
가나
|
댓글
17
|
2022.02.10
슬라이딩창에서 시스템창으로 급하게 바꿔서 위에 사진보시다시피 창호하단의 5~7cm정도를 열반사 단열재를 덮어야 합니다. 미장 > 석고보드 > 인조대리석(최종마감) 으로 한다는데요 어떻게 더 좋은 방법 있으면 조언 부탁드립니다 . 현재 비계철거, 유리삽입까지 했습니다 감사합니다…
더보기
곰팡이 있는 곳 단열 전 방수보드?
6238
|
G
김지현
|
댓글
9
|
2022.02.10
외벽에 뒷베릴다가 북향에 옆동이 ㄱ자로 서있어서 빛이 안 드는 형태입니다. 외벽 끼고 있는 뒷베릴다와 방 두개의 벽면두개곰팡이로 가득하더라구요. 원래 방은 1.아이소핑크 두께는 고객 원하는대로+ 석고보드2장으로 마무리 2.아이소핑크 얇은거 대고 목공쳐서 아이소핑크 끼워넣고 석고보드 2장…
더보기
화장실 난방에 대한 질문
6237
|
1
이성환
|
댓글
7
|
2022.02.10
안녕하세요 ~ 현재 직영으로 작은 협소주택을 짓고 있는 건축주이자 건축설계자입니다. 하루 1일 패시브협회를 보면서, 부족한 지식들을 채우고 있는데요 ~ 화장실 바닥 난방에 대한 글을 보던 중 디테일의 미묘한 차이가 있는 부분 때문에 질문드립니다. 이 글로 화장실 난방에 대한 정확한 디테…
더보기
전열교환기 배치 관련 문의
6236
|
G
쉼표
|
댓글
21
|
2022.02.09
안녕하십니까? 항상 협회를 통해 많은 도움을 받아 감사드립니다. 리모델링 시 전열교환기를 설치하려 하고 있습니다. 전열교환기 업체와 설치 관련하여 이야기를 하는데, 협회에서 배운것과 같이 방에 급기, 주방쪽 배기를 요청하였습니다만, 해당업체에서는 그런식으로는 하지 않는다고 자기들 나름의…
더보기
무근두께에 따른 와이어메쉬 질문
6235
|
G
심근우
|
댓글
1
|
2022.02.09
안녕하세요. 슬래브위에 올라가는 무근콘크리트의 와이어메쉬 선정에 대해 찾아보던 중 무근두께에 따른 와이어메쉬 선택 방법 문의라는 글에서 1%는 "철근콘크리트"이기 위한 최소철근비이며, 하중을 받는 슬라브 위에 올라가는 무근콘크리트의 경우 "균열을 막기 위한" 목적이므로, (슬라브 강도에…
더보기
외벽과 면하는 곳 부분단열에 궁금한점
6234
|
2
윤태진
|
댓글 0
|
2022.02.09
안녕하세요 매번 협회에서 도움을 받고 지식을 채워가고 있는 예비 건축주입니다 갑자기 궁금한게 생겨서 문의를 드립니다 외단열을 하고 외벽과 면하는 부분에 30mm 로 1m 정도 단열을 내부에 하는데 결로방지용으로 벽체를 새로 세우는거야 큰 상관은 없지만 천장을 새로 해야하는경우 단열재위에…
더보기
전열교환기 대신에.....
6233
|
2
에어원
|
댓글
4
|
2022.02.09
다세대를 계획하며 전열교환기를 설치하려니 엄두가 안납니다 하여 다음과 같이 꼼수로 환풍장치를 하면 어떨까하는 생각을 해봅니다 -잡자재에서 판매하는 필터박스에 속도를 10단 조절할 수 있는 환풍기(힘펠 제로크프라임, 직경 100mm)를 연결하여 필요시 적절한 배풍장치 즉 렌지후드나 욕실의…
더보기
락보드 문의
6232
|
3
가나
|
댓글
3
|
2022.02.09
안녕하세요 저번에 언급해주신 락보드 문의 드립니다. 락보드가 석고보드보다 물성도 좋고 방수도 ㄷ되니 콘크리트면에 에폭시 떠발이로 싱크대에 최종외장재로 시공이 가능한지요? 아니면 떠발이 대신 다른 부착방법으로 석고보드 + 타일 대체가 가능한지 궁금합니다~ 감사합니다
간척지 지하 건축 질문드립니다.
6231
|
G
간척지
|
댓글
5
|
2022.02.08
안녕하세요 송도에 간척지에 조성되는 타운하우스 부지에 단독주택을 계획중입니다. 바닥면적 50평 2층 계획중이구요. 지하에 벙커형 주차장에 멀티놀이방(운동기구 스크린골프등)을 만들고 싶은데요. 간척지라 지하가 더 어려운 점이 있을까요? 협회유튜브 영상을 보면 지하 비추하시던데, 건폐율이 …
더보기
글쓰기
281
282
283
284
285
286
287
288
289
290
Search
검색대상
제목
내용
제목+내용
회원아이디
회원아이디(코)
글쓴이
글쓴이(코)
검색어
필수
Login
Login
자동로그인
회원가입
|
정보찾기
Category
자주 묻는 질문
설계/시공관련 질문
하자/불편 관련 질문
열해석관련 질문
Energy# 관련 질문
WUFI 관련 질문
이런 저런 이야기...