설계/시공관련 질문 253 페이지 > (사)한국패시브건축협회 (Passive House Institute Korea)

설계/시공관련 질문

질문 전에 먼저 검색을 해주세요.

 

이 H빔, 어찌할까요?
G 양승연 | 댓글 27
기둥재가 바닥에서 뜨면 안되는 것으로 아는데 업체에서 이렇게 시공해 버렸습니다. 보수 방법이 있을까요? 다시 뜯고 하면 가장 좋지만 비용을 문제로 들며 해주지 않으려고 합니다. 이렇게 떠 있는 부분에 무수축몰탈이라도 하면 될까요? 막막합니다.
파벽돌 외장재에 레인스크린 설치 질문입니다.
G 문상록 | 댓글 2
안녕하세요! 유튜브 영상과 여러 자료들을 보며 예비 건축주로써 항상 도움을 얻고 있습니다. 감사합니다 이번에 타운하우스 입주를 고민하다가 상담을 해봤는데 목조주택으로 건축하여 분양하더라구요 여러가지를 물어보다가 레인스크린 이야기가 나왔는데 파벽돌 외장재를 사용하기에 외벽에 빈 공간이 없… 더보기
질문있습니다.
G 학생 | 댓글 5
선생님 안녕하세요. 건축에 관심이 많은 고등학생입니다. 아버지가 가끔 이 싸이트를 보시는데 저도 궁금한게 있어 여쭤봅니다. 어른들이 타일을 붙이시는 걸 보면 보통 벽타일부터 붙이시고 후에 바닥타일을 붙이시던데 특별한 이유가 있나요? 거꾸로 바닥부터 붙이고 후에 벽을 붙이면 안되나요? 갑… 더보기
옥상 코너부분 문의, 및 개축 범위 문의
G 개냥이조련사 | 댓글 18
제주도에서 단독주택 신축중입니다. 그동안 많은 도움주셔서 감사합니다. 레미콘 믹스차 파업, 화물연대 파업으로 총 3달간 공사지연을 겪고 엊그제 마지막 파라펫 및 계단실 타설을 완료하였습니다. 이제 골조가 끝나고 내외부 공사 시작입니다. 옥상은 역전지붕입니다. 시공상 큰 어려움이 없어 제… 더보기
가변형투습지에 대해서 궁금합니다. 그리고 이것저것...^^
G 민서아범 | 댓글 1
안녕하세요? 장차 목조로 작은 집을 직접 지어, 살아보는 게 목표인 사람입니다. 그래서 여기 사이트를 통해 귀하고, 중요한 정보와 지식을 틈틈히 얻어감에 항상 감사하게 생각하고 있습니다. 다름이 아니라, 갑자기 (뜬금없이) 이것저것 궁금한 게 있어 여쭙고자 합니다. 1.가변형투습지의 시… 더보기
목조주택 시스템에어컨 정말 괜찮은가요?
G 신은주 | 댓글 1
전문가님들께 조언을 좀 구하고 싶습니다 많은 고민을 하고 있습니다 ㅠㅠ 1.목조주택(콜드루프)일 경우 시스템에어컨을 설치하게 되면 에어컨이 위치하는 곳은 단열재가 빠지는건가요? 장선도 잘라내야 하나요? 2. 우물천장?(뭔지 잘 모르겠지만.. )으로 단열재 아래에 위치하기 때문에 1번의 … 더보기
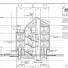
RC조 층고높이 산정 검토요청
1 궁내동 | 댓글 5
안녕하세요! RC조로 3층 단독주택을 설계 시공하고자 준비하고 있습니다. 협회 자료실과 유튜브 영상을 감사히 열람 시청하고 있습니다. 귀한 정보를 널리 전파해주시고 적극 상의해주시는 협회에 항상 감사드립니다. 건축사로부터 기본 설계 계획안은 수립하고 선정까지는 하였는데요. 저 개인적으로… 더보기
지붕 시멘트 기와 시공 전 밑작업
G 이지훈 | 댓글 1
안녕하세요 시멘트 기와시공을 앞두고 있는 사람입니다. 궁금점이 있어 문의글 남깁니다. 현재 시멘트 기와 시공할 부분이 지붕이 없는 (천장이 뻥 뚫려있는) 벽만 서있는 상태 입니다. 그래서 기와를 받칠 수 있게 기둥을 새로 세우고 그위로 상을 만들어 기와를 시공하려고 하는데 골조를 세우고… 더보기
테라스 방수 관련 질문입니다.
1 스와브 | 댓글 6
안녕하세요!테라스 방수관련하여 조언해주실 수 있을까요!? 현재는 아래 도면처럼 4층 테라스 부분이 우레탄노출방수로 되어 있습니다.. 계획대지가 일조사선을 받는데다가 2층/3층 임대세대 천정고를 2,300을 확보하려다보니 테라스부분 일조사선으로 인해 외단열로 할 경우 단열재(200T)를 … 더보기
목조 구조의 벽체 보강 필요성
1 regmbnick | 댓글 3
설계하고 있는 구조체는 중량 목구조입니다. 목조 구조의 특성상 상부장 같은 것을 설치하기 위해 RC 구조와 달리 벽체 내부의 방습층과 단열재의 손상이 없도록 보강을 해야 하는 것으로 압니다. 완공 이후에 가구 구성이 변경될 때 보강되지 않은 벽체에는 설치하지 못하는 제약이 있어 해당 부… 더보기
콘크리트 철근으로 건축시 방수 효과
G 김희원 | 댓글 5
안녕하십니까. 검색해보다가 정확한 답을 못찾아서 문의 드립니다. 최근에 아파트에 설치된 대형 어항이 터져서 아래층에 누수 피해가 있었다는 뉴스를 접했습니다. "건축시 타설하는 콘크리트에 방수효과가 있어서 윗집거실에서 터진 물이 아랫집에 누수로 영향을 주는 것은 아니다" 라는 이야기들이 … 더보기
거푸집
G j | 댓글 2
콘크리트 주택입니다. 타설한 다음날에 바깥 벽의 거푸집을 해체하고, 그리고 몇일 지나야 안쪽 벽의 거푸집을 제거할수있는 상태가되나요? 감사합니다.
화장실 난방관 관련 질문입니다.
2 원성대마왕 | 댓글 4
안녕하세요 화장실 난방관련 질문드립니다. 구옥 조적조 입니다. 바닥 - 방통몰탈층(5cm,엑셀) - 도막방수 - 사모래 - 타일 바닥 - 방통몰탈층(5cm) - 도막방수 - 사모래(엑셀) - 타일 이중배수는 없으며 단열재도 없습니다. 작업상 쉬운건 몰탈층에 묻어버리는게 쉽긴합니다. 1.… 더보기
수도배관 및 방통 설비 문의 드립니다
G 설비문의 | 댓글 4
Q1. PB수도배관 내부에도 철배관처럼 오랜기간 사용시 스케일이나 녹같은게 끼는 문제가 발생하나요? 이럴 경우 배관내부를 청소할 수 있는 방법이 있는가요? Q2.CD관을 사용하여 이중배관을 할때 오픈수전함을 사용하더라도 벽과 바닥이 맞닿는 부분은 L자 엘보를 사용해야되는데요 L자 엘보는… 더보기
이중 배수 관련 아이디어에 대해 검토 부탁드려요~
G 영덕대게 | 댓글 7
안녕하세요. 늘 질문 많이 올리고 도움 받아가고 있는 영덕 건축주 이호준입니다. 매번 이름을 실명으로 적다가 영덕 건축주이기도 하고 기억도 하기 쉬우시게 영덕대게로 이름을 바꿔보았습니다 ㅎㅎ 오늘 질문은 다름이 아니라 제가 다른 건축 관련 카페를 보다가 본 패시브협회 유튜브 영상을 레퍼… 더보기
건식난방 모듈판 eps epp xps
G 박진숙 | 댓글 3
안녕하세요. 건식난방배관을 가정집 바닥에 시공하려는데 업체마다 모듈판의 소재가 다릅니다. eps, epp, xps 중에서 어떤 것이 좋을지 말씀해 주시면 고맙겠습니다. 그리고 spc 방열판이 깨질 수 있다는 글을 어디에서 보고서, 결국은 일반방식인 "엑셀, 미장"을 해야 되는가? 라는 … 더보기
아파트 하중 관련... 책장 무게 괜찮을까요??
G 호돌맨 | 댓글 1
최근에 수조무게로 인한 바닥처짐이 발생햇다고해서 걱정이되서 질문드립니다... *사진설명* 사진은 방 입구에서 찍은사진입니다. 방입구 정면기준으로 ㄷ 자로 벽쪽으로 책장이 배치되어잇고 자전거랑 박스 놓여있는면이 베란다를 튼 공간입니다. 책장 공간이 부족해서 책장칸마다 두줄씩 놓여있고 천장… 더보기
alc 실내 비내력벽 두깨 100미리 가능한가요?
G 또뚜 | 댓글 1
안녕하세요. 세대내 벽체를 alc로 하고 직접 도장을 하려고 하는데요. alc업체에서 가정집 내벽은 150미리로 보통 한다고 하시는데요. 공간이 협소해서 조금도 아쉬운 상황이라 ㅠㅡㅠ 혹시 100미리로 했을 때 방음문제가 있을런지요??
전원주택방통
G 청석 | 댓글 6
방통작업하지않고 수평맞추는방법이없는지요? 방통작업이란 엄청난습기를 가지고있고 왠지구시대적방법같기도하구요 다른방법으로 난방고사및수평작업할수는없는지요?
수도 설비관련 질문
G 설비질문 | 댓글 5
안녕하십니까. 수고많으십니다. 수도 설비 관련 질문드립니다. 급수 배관 관련 질문답변을 쭉 훑어보니, 스테인리스관이 제일 좋은 평가를 받는 것 같습니다. 1층 기초에도 스테인리스관 매립이 가능한가요? 오수관, 배수관이 매립 가능한것을 보니 급수관 사이즈의 스테인리스관은 문제 없을것 같다… 더보기
옥상에 풀장(간이수영장)설치 하중관련 질문드립니다
G 류창원 | 댓글 5
*안녕하세요 지역별로 장마가 시작된다고 하는데 비피해 없도록 조심하시고 좋은하루 되십쇼^^ 인텍스 풀장을 테라스에 설치하려고 하는데 관련하여 질문좀 드립니다 1번 : 3m * 2m 짜리랑 2번 : 2.2m * 1.5m 짜리가 있는데요 물높이를 같이 40cm라고 가정할때 1번은 300*2… 더보기
최상층 세대 천장 단열재 보수문제....어떻게 진행해야할까요?
G con12 | 댓글 3
최상층 천정 누수하자 때문에 천정을 들어내고 지붕층 누수가 의심되어 천장에 설치된 80T 경질단열재도 파내어 방수작업을 진행한 상황입니다. 보수한것까진 좋은데 천장단열재 복구는 어떻게 해야할까요? 우레탄폼으로 쏴도 상관없을까요?
층간소음이요
G 이승연 | 댓글 1
진동소음때문에 미치겠어요ㅠ 웅웅 끊이지 않게 나고 나다안나다 불안장애 생기겠어요 미묘하게 나는 소리라 괜히 내가 예민한 사람 취급받을까봐 전문적으로 진동소음 탐색해주는 업체 혹시 있을까요? 원인이라도 알아야 어떡해 해볼텐데 제 생각엔 바로 윗층에서 나는 소리인거 같은데 윗층에선 자기네서… 더보기
난방배관 최적 경로?
1 송인 | 댓글 3
; 난방 배관을 화살표 방향으로 경로를 바꾸게 되면 거실과 방-1이 거리가 짧아집니다. 방-1는 극단적으로 짧아지고요, 이렇 때 난방 효율에 유리하게 될까요? 오히려 비등하게 거리를 맞춘 원안이 더 전체 효율에 유리할까요? 또한 거실반투명하게 칠해진 부분을 뒤집어 배선하면 그 길이가 비… 더보기
Category