열교환기 설치 문의

설계/시공관련 질문

질문 전에 먼저 검색을 해주세요.

 

열교환기 설치 문의

G 열교환기러버 2 1,271 07.01 13:29

하세요.

지금 살고 있는 준 신축아파트에서 아이가 비염이 있어서 열교환기를 매우 잘 사용하였습니다.

 

올해 9월말에 23년된 구축아파트로 이사를가며 풀 인테리어를 계획하고 있습니다.

 

구축이라 천장공간이 5cm 정도 밖에 나오지 않아서 열교환기를 포기해야하나 생각하고 있었는데,

이 사이트에서 여러 정보를 얻고 원래 설치 예정이던 시스템 에어컨 단내림 공간과 플랫덕트를 활용하면 설치가 가능할 수 있겠다는 희망을 얻었습니다.

 

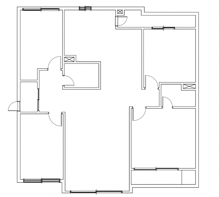
아파트는 43평이고 구조는 아래와 같습니다. 그리고 에어컨 단내림은 거실과 방 4개 총 5곳에서 진행할 예정입니다. 그리고 모든 샤시 교체 예정입니다.


KakaoTalk_20250701_133129255_01.png


거실 & 안방 & 아이방 최소 3개에 흡기/배기가 설치되었으면 합니다. 설치를 원하는 장소는 아래와 같습니다.

KakaoTalk_20250701_133129255.png

흡기&배기&전열교환기 구조를 어떻게 잡아야 덕트가 드러나는 것을 최소화하면서 작업이 가능할까요?

 

그리고 제가 인테리어 진행할 업체와 함께 작업하며 전열교환기 설치가 가능한 업체 추천도 가능하실지요?

 

여러가지로 좋은 정보 주셔서 감사합니다.:)

 


Comments

10 南無 07.01 20:36
협회 시공사를 고르면 되시지 않을까요?
https://www.phiko.kr/bbs/page.php?hid=member_list_phiko_Engineering
양지시스템 잡자재 SSK 등이 있습니다!
M 관리자 07.02 16:37
나무님.. 감사합니다.

-------------
전열교환기는 어디에 두실 예정이신가요?
Category