한옥 창문 및 주변 목재틀 제거 가능여부

설계/시공관련 질문

질문 전에 먼저 검색을 해주세요.

 

한옥 창문 및 주변 목재틀 제거 가능여부

1 수행가 3 464 06.15 20:28

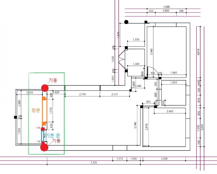
현재 한옥 끝단부분에 창문과 문이 있습니다.

해당 벽 끝에 큰 원형 기둥이 서있으며, 창문 주변부 및 문 주변부는 10cm*10cm의 목재가 있습니다.

창문이 있는 벽은 황토블럭+황토미장 총 350mm으로 이루어져있습니다.

문을 폐쇄하고, 창문이 있는 부분(아래 사진 노란색 빗금친 부분)을 철거하여 양개식 슬라이딩 중문을 설치하여 사용하고자 합니다.

창문 위 기둥사이 가로지르는 "상방"은 철거하지 않습니다.


 

한옥 구조 중에서 창문 밑을 가로지르는 목재인 "중방" 1개 및 좌우 목재부분 철거해도 되는지 궁금합니다.

 

창문.jpg 

 


 

단면도.jpg

 



 

Comments

M 관리자 06.16 13:01
철거를 하셔도 되는데. 사진의 오른쪽에 있는 기둥(보에서 바닥까지 수직으로 세워진 목재)는 남겨 두셔야 합니다.
그리고 가능하다면 왼쪽의 목재도 오른쪽 기둥처럼 목재를 하나 세워서 바닥부터 보까지 연결을 해주는 것이 장기적으로 나은 방법입니다.
1 수행가 06.16 18:09
감사합니다. 많은 도움이 되었습니다. 좋은 하루 되세요
M 관리자 06.16 18:11
감사합니다.
Category