제주특별자치도 제주시 한림읍 - 단독주택 - 봄을 보는 집

사례집(저에너지/패시브)

제주특별자치도 제주시 한림읍 - 단독주택 - 봄을 보는 집

성북동비둘기 4 4,550 2022.08.01 20:33
*용도단독주택 
건축물주소[ 63015 ] 제주특별자치도 제주시 한림읍
건축물이름봄을 보는 집 
설계사(주)조한준건축사사무소 
시공 또는 시공관리화미건축 
기계설비설계사지엠이엠씨 
전기설비설계사지엠이엠씨 
구조설계사(주)조한준건축사사무소 
에너지컨설팅(사)한국패시브건축협회 
설계기간2020년 12월~2021년 5월 
시공기간2021년 8월 ~ 2022년 2월 
대지면적838  ㎡
건축면적164.52  ㎡
건폐율19.63  %
연면적141.15  ㎡
용적율16.84  %
규모지상1층 
구조방식주택 : 경골목구조 / 주차장 : 철골조+경골목구조 
난방설비기름보일러 
난방용량14.29 
냉방설비에어컨 
냉방용량32.26 
주요내장재석고보드위 도장(던에드워드) 
주요외장재백고벽돌 타일 
외벽구성백고벽돌타일
마그네슘보드
세로각상(통기층)
투습방수지
THK40 32K 글라스울(생고뱅이소바)/세로각상
THK40 32K 글라스울(생고뱅이소바)/가로각상
OSB 구조용합판
THK140 24K 글라스울(생고뱅이소바)
가변형방습지(기밀층)
설비층
석고보드 2겹
올퍼티 / 친환경페인트(던에드워드, 벨벳) 
외벽 열관류율0.192  W/㎡·K
지붕구성알루미늄징크
델타멤브레인
방수시트
OSB 구조용합판
세로각상(통기층)
지붕용 투습방수지
THK40 24K 글라스울(생고뱅이소바)
THK140 24K 글라스울(생고뱅이소바) 2겹
가변형방습지(기밀층)
설비층
석고보드 2겹
올퍼티 / 친환경페인트(던에드워드, 벨벳) 
지붕 열관류율0.131  W/㎡·K
바닥구성원목마루
시멘트몰탈
와이어메쉬
비드법보온판 2종1호 135mm
PE 필름
매트기초
PE 필름
압출법보온판 80mm
 
바닥 열관류율0.134  W/㎡·K
창틀제조사엔썸케머링 
창틀 열관류율0.95  W/㎡·K
유리 제조사(주)삼호글라스 
유리 구성Ensum_T47/5PLA UN+16AR+5CL+16AR+5PAL UN 
유리 열관류율0.57  W/㎡·K
창호 전체열관류율
(국내기준)
0.841  W/㎡·K
창호기밀성능
(국내기준)
0.00 / 0.14  ㎥/㎡·h
현관문 제조사엔썸케머링 
현관문 열관류율0.519  W/㎡·K
문기밀성능
(국내기준)
0.55  ㎥/㎡·h
기밀성능(n50)0.43  회/h
환기장치 제조사스타즈스터링 코리아 
환기장치효율
(난방효율)
75  %
난방에너지요구량14.29  kWh/㎡·a
난방부하11.4  W/㎡
1차에너지소요량144  kWh/㎡·a
계산프로그램에너지샵(Energy#®) 2021 v2.5 
인증담당자박요한 
인증번호2022-P-003 
신축공사

제주도 한림읍 협재에 단 층의 패시브주택이 완공되었습니다.

건축주는 60대 후반의 노부부로 서울 구기동에 100평이 넘는 고급빌라에서 두분만 지내고 계셨고 제주도에 먼저 터를 잡고 주택을 짓고 살고 계시는 언니의 권유로 이미 자녀들이 독립하여 살고 있는 덕에 기존에 살고 계시던 집은 너무 큰집이 되어 버렸습니다.

아내분의 건강을 고려하여 건강한 집을 짓기 위해 제주도에 아담한 패시브 주택을 짓기로 마음을 먹고 우리를 방문하여 주신 건축주와의 인연은 설계를 의뢰받은 이후로 입주까지 1년이 넘는 시간이 지났습니다.

시공은 화미건축에서 맡아 주셨고 다소 공사기간이 길어진 이유에는 제주도라는 특성과 화미건축의 꼼꼼함이 한 몫 하였지만 건축주께서는 잘 기다려주셨습니다.

 

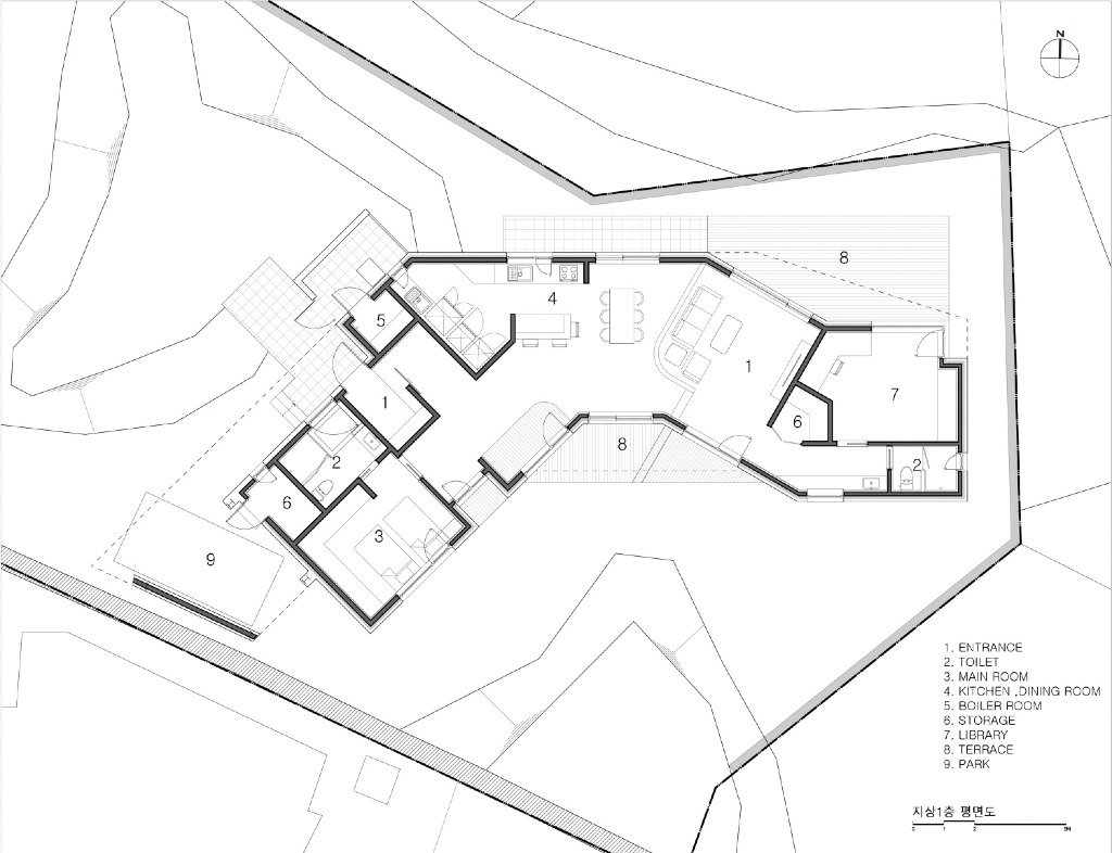
대지에는 현무암으로 이루어진 지반암이 분포 했었고 건축주는 도로에 붙여 넓은 마당을 보면서 살고 싶었지만 우리는 도로에서 가급적 멀리 그리고 관리해야 하는 마당을 작게 만들었습니다. 두 개의 지반암 사이에 집을 절묘하게 앉혔고 마당에는 자연 그대로의 모습의 바위를 조망할 수 있도록 하여 거실과 방안에서도 제주만의 풍광을 그대로 끌어들였습니다.

돌무덤과 자연에 어우러지는 조경공사를 한지 얼마 되지 않아 조경수와 풀과 꽃이 만연해지는 여름이후에 입주후 준공사진을 촬영을 하려고 합니다.

 

KakaoTalk_20220725_150312158_02.jpg

 

KakaoTalk_20220725_150312158.jpg

 

KakaoTalk_20220725_150312158_01.jpg

 

KakaoTalk_20220725_150312158_03.jpg

 

KakaoTalk_20220725_150312158_04.jpg

 

KakaoTalk_20220725_150312158_05.jpg

 

KakaoTalk_20220725_150312158_06.jpg

 

KakaoTalk_20220725_150312158_07.jpg

 

KakaoTalk_20220725_150312158_08.jpg

 

KakaoTalk_20220725_150312158_09.jpg

 

KakaoTalk_20220725_150312158_10.jpg

 

KakaoTalk_20220725_150312158_11.jpg

 

배치도-HD.jpg

 

평면도.jpg

 

입면도1.jpg

 

입면도2.jpg

 

단면도1.jpg

 

단면도2.jpg

 

매스프로세스.jpg

 

 

 

 

Comments

관리자 2022.08.01 17:14
수고하셨습니다.
성북동비둘기 2022.08.01 20:20
감사합니다~
whamip 2022.08.17 16:31
협재 해수욕장의 일몰이 그리워지네요~
박순화 2022.10.12 11:50
너무나 부러운집입니다. 저도 제주도에 집지을려는데 참고가 되네요 ^^
Category