표준주택 V4 (2층) : 43D-A-S (145.38㎡)

표준주택

표준주택 V4 (2층) : 43D-A-S (145.38㎡)

M 관리자 17 20,294 02.21 16:41

 

1. 설계개요

마감재 및 외벽구성 

계약금액에 포함된 것과 제외된 사항 

아래 링크에서 확인하시기 바랍니다.

 http://www.phiko.kr/bbs/board.php?bo_table=z11_01&wr_id=1

 

2. 2025년 계약금액

정기적으로 매년 2번의 계약금액 검토 후 업데이트하고 있습니다.  

1월 고시된 금액에 오류가 있어서 2월 21일 날짜로 정정하게 되었습니다. 

  

3. RC로 변경할 경우

- 10% 금액 상승이 있습니다. (402,000,000+VAT 10%)

평지붕으로 변경됩니다. 

- 디자인은 추후 공개될 예정입니다. 


   

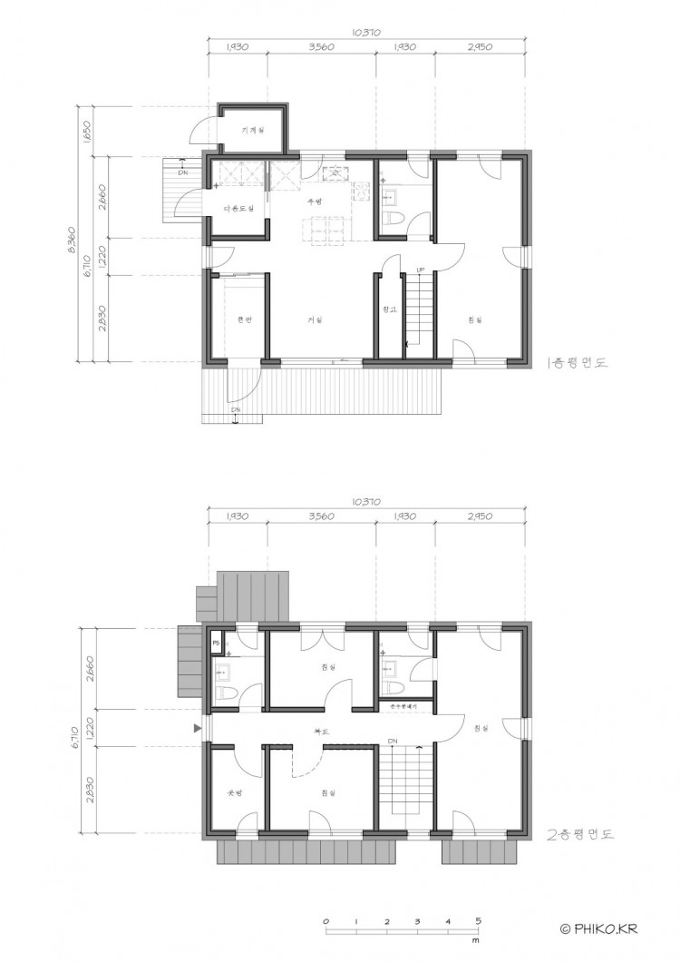
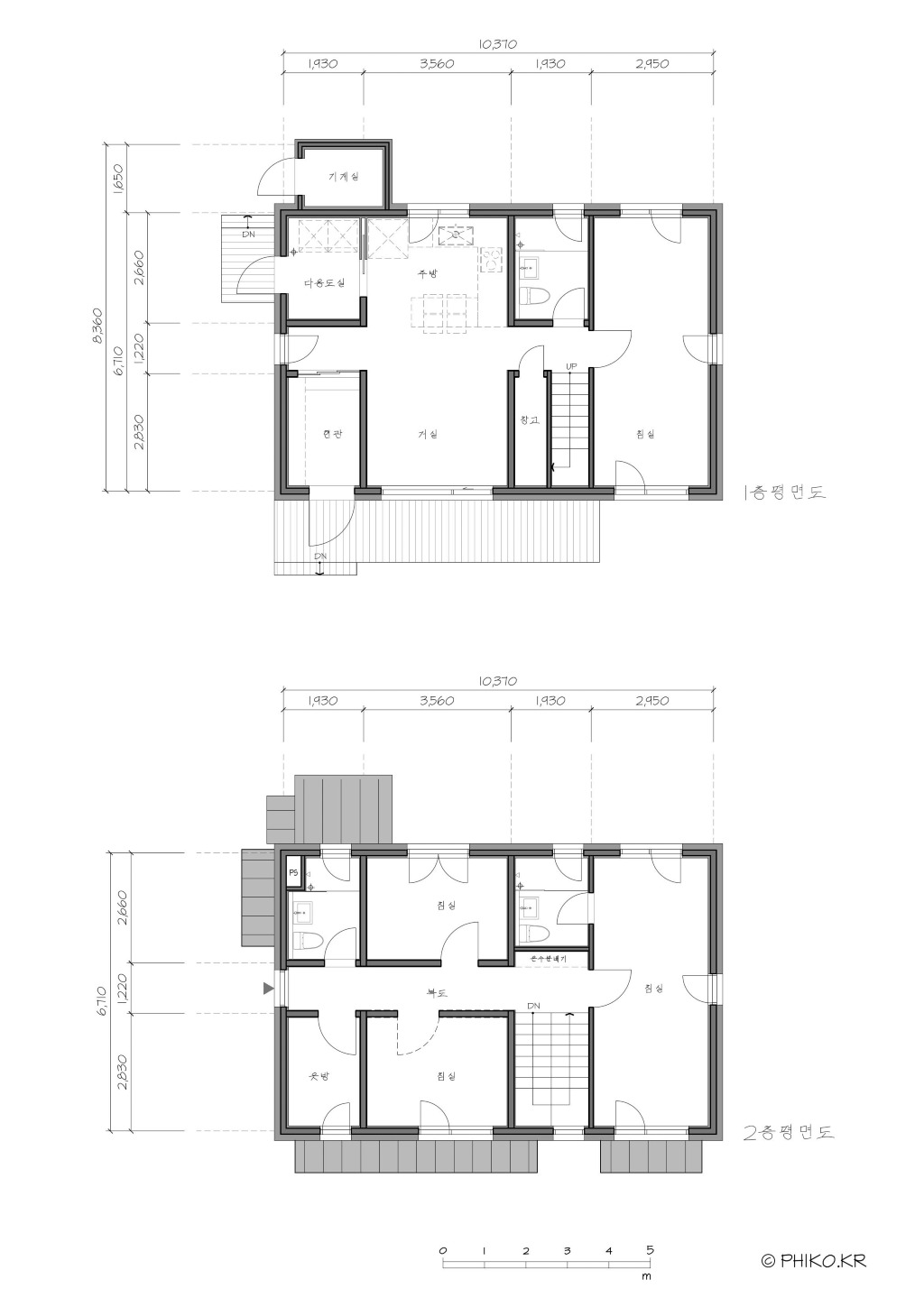
43D-A타입 

계약금액 : 365,500,000(VAT 별도:10%) 

 

건축면적 : 22.57평 

연면적 : 43.98평

 

43D-A.P1.jpg

 

43D-A.P2.jpg


 

Comments

G 동욱 2019.02.22 06:40
표준 도면의 계단의 폭이 작은게 아닌가요?
2층 건물의 계단에 동시에 2명이 상하로 이동 시 최소 1200~1300폭은 확보해야 편안하게 이동 가능한게 아닌가요?
M 관리자 2019.02.22 09:34
네 그렇긴 합니다만, 계단이 면적을 너무 많이 차지해서요...
안목 치수 900 으로 타협을 했습니다.
G 토니 2019.06.10 07:34
안녕하세요.
36C-4D 평형 관심이 가는데요.
가격이 어느 정도인지 궁금합니다.
1 무식장이 2019.08.05 01:42
36A-4D 와 같은 평형입니다. 그런데 거실쪽 크기가 3050 vs 2745 로 다릅니다.
M 관리자 2019.08.05 11:00
출입구의 위치가 다른 타입인데, 나머지가 유사해서 그렇게 보신 것 같습니다.
G 무식장이 2019.08.07 00:35
이미지에서 표시해봤습니다.
출입구부분에서 면적차이가 있고, 내부 벽체에 의한 차이도 있기는 합니다.
300이라는 값이 2층에 걸쳐서 반영되기는 하는데, 어떤식으로 면적을 계산을 하는지 잘 모르므로 유사하다고 이해하겠습니다. 답변감사합니다.^^
M 관리자 2019.08.07 12:09
1차로 올린 평면도들이 전체적으로 한번 수정되었습니다.
빠른 시간내에 업데이트하도록 하겠습니다.
계단실폭 위주로 변경되었기 때문에, 레이아웃은 거의 유사합니다.
그리고 면적과 관련해서는 같은 36평형대이지만, 면적의 차이가 있습니다.
36C-4D의 경우, 실제면적은 35평대입니다.
모듈을 맞추다보니, 면적의 차이가 발생했습니다.
계약금액의 차이도 그 때문이라고 보시면 되구요.
지적해주셔서 평면도업데이트 누락한 걸 발견했습니다.
고맙습니다.
1 지붕위아빠 2021.02.15 11:26
늘 좋은 정보를 많이 얻고 갑니다. 몇 가지 질문 드립니다.

1. 1층의 우측 하단의 방을 트는 것도 가능한가요? 가능하다면 비용이 어느정도인가요?
2. 2.7억은 시공비로 알고 있습니다. 건축사 및 시공사와 실제 건축을 진행한다고 하면 설계비+제외된 비용을 고려하면 되는건지요? 제외된 비용은 보통 어느정도를 예상하면 무리가 없나요? 의견 부탁 드립니다.
M 관리자 2021.02.15 15:28
1. 전면 방을 다 트는 것은 가능하기는 하나, 구조내력상 검토를 해보아야 합니다. 필요시 기둥이 추가될 수도 있습니다.
2. 제외 비용은 인허가비용(지역에 따라 다르지만 약 400만원 내외)와 각종 가구류, 그리고 대지의 상황에 따른 조경, 토목 등의 비용이라서 사실 글만으로 추정키는 어렵고, 취향하고도 연관이 된 부분이라서요.  다만 사례를 비추어 볼 때, 약 3~4천만원 정도 였었습니다.
G 따뜻한집 2021.04.15 13:55
유튜브통해 좋은정보 보다가 질문드립니다.

다락전체형 (36C-4D-W)
질문1. 2층 안방화장실을 서재로 변경가능 한가요? 가능하다면 창문사이즈 변경이 가능한지요?

질문2. 도면을 보면 방과 드레스룸에 붙박이 장처럼 점선이 있는데 붙박이장도 포함인가요?

항상 좋은정보 감사드립니다.
M 관리자 2021.04.16 00:41
안녕하세요..
1. 가능합니다.
2. 그렇지는 않습니다. 그 곳에 설치가 된다는 예로 그려 넣은 것입니다.

좋게 봐 주셔서 감사합니다.
G 따뜻한집 2021.05.21 17:39
도면을 보면 주방의 식탁과 TV장의 사이에 점들이 있는데 이건 기둥인가요?꼭 들어가야 하는건가요?
M 관리자 2021.05.21 21:25
그렇지는 않습니다. 그저 인테리어의 요소여요. 삭제 가능합니다.
G 한나 2021.11.30 15:06
안녕하세요 복층형으로는 가격이 낮고 구조도 마음에 듭니다 그런데 목조가 아닌 철근콘크리트로도 건축이 가능한가요?
M 관리자 2021.12.01 00:21
가능합니다만, 이 가격은 아니고 가격 산정을 새로 해야 합니다.
충분히 고민을 해보시고, 협회에 상담 신청을 하시면 되실 것 같습니다.
G 아리수 07.02 12:18
거실위에 위치한 2층방을 없애고 빈공간으로 만드는 것도 가능할까요??
천장을 높게 쓰는게 가능한가 싶어서요
M 관리자 07.02 20:38
방을 없애고 빈 공간으로 만드는 것은 가능합니다. 다만 두개층을 오픈하는 것은 비용이 상승합니다.
Category